Pre-reserved
U Cihadel
AMITY Modern two-storey family house in a newly developed project in the prestigious location of Prague 4 – Tocna
U Cihadel
・
ID 533286
U Čihadel, Točná, Praha 4
€ 1,070,171
€ 1,070,171
AMITY Modern two-storey family house in a newly developed project in the prestigious location of Prague 4 – Tocna
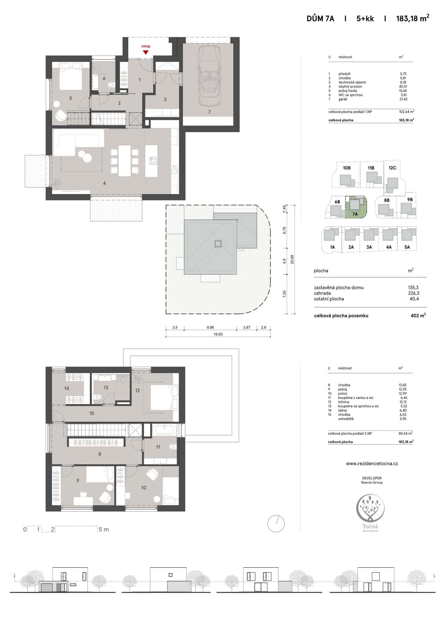
We present a newly built two-storey family house within a new residential project in the sought-after location of Prague 4 – Tocna. The complex includes only twelve detached houses located in a quiet, green area. The Tocna Residence combines privacy, thoughtful architecture, and a close connection to nature, creating a balanced environment for relaxed family living.
The 4-bedroom house offers a total usable floor area of 183 sqm spread over two floors. The ground floor features an entrance hall with technical facilities and access to the garage, followed by a generous living room with a kitchen and dining area measuring 45 sqm. Large aluminum windows on two sides provide plenty of natural light and allow direct access to the terraces and south-facing garden. This level also includes a separate room with a bathroom, suitable as a study or guest bedroom.
The upper floor comprises the master bedroom with a walk-in closet and private bathroom, two additional bedrooms, a spacious family bathroom, and plenty of storage space.
Equipment
Comfort is ensured by an air-to-water heat pump, underfloor heating, and a heat recovery ventilation system. Standard features include aluminum triple-glazed windows, wooden floors, high-quality bathroom fittings, external blinds, preparation for photovoltaic installation, and an electric vehicle charging point in the garage. The house achieves Energy Class A.
Locality
The location offers exceptional tranquility, greenery, and quick access to Prague’s city center. The project also contributes to the development of local amenities, including a planned community center and self-service grocery store. Nearby you will find the renowned Prague British International School.
Property specifications
- Location
- Točná
- Address
- Layout
- 5+kk
- Bedrooms
- 4
- Bathrooms
- 3
- Floor area
- 183 m²
- Land plot
- 402 m²
- Garden
- 226 m²
- Number of floors
- 2
- Parking
- 1x Garage
- Building condition
- Under construction
- Energy efficiency
- A
Are you interested in this property?
Contact us. We’ll be happy to discuss the details.

Gallery
What the property looks like and its surroundings
Floor plan
What you'll find in the property
We’ll help you choose
We’ll help with financing
Property as an investment
Location
What's around the property
Watchdog

