Exclusive
U Cihadel
EUFORIA Modern two-storey family house in a newly developed project in the prestigious location of Prague 4 – Tocna
U Cihadel
・
ID 533283
U Čihadel, Točná, Praha 4
€ 1,085,750
€ 1,085,750
EUFORIA Modern two-storey family house in a newly developed project in the prestigious location of Prague 4 – Tocna
We offer for sale a modern two-storey family house within a new residential project in the prestigious area of Prague 4 – Tocna. The project consists of only twelve homes located in a quiet neighborhood surrounded by nature. The Tocna Residence combines privacy, high-quality architectural design, and a pleasant green setting, creating an ideal place for family living.
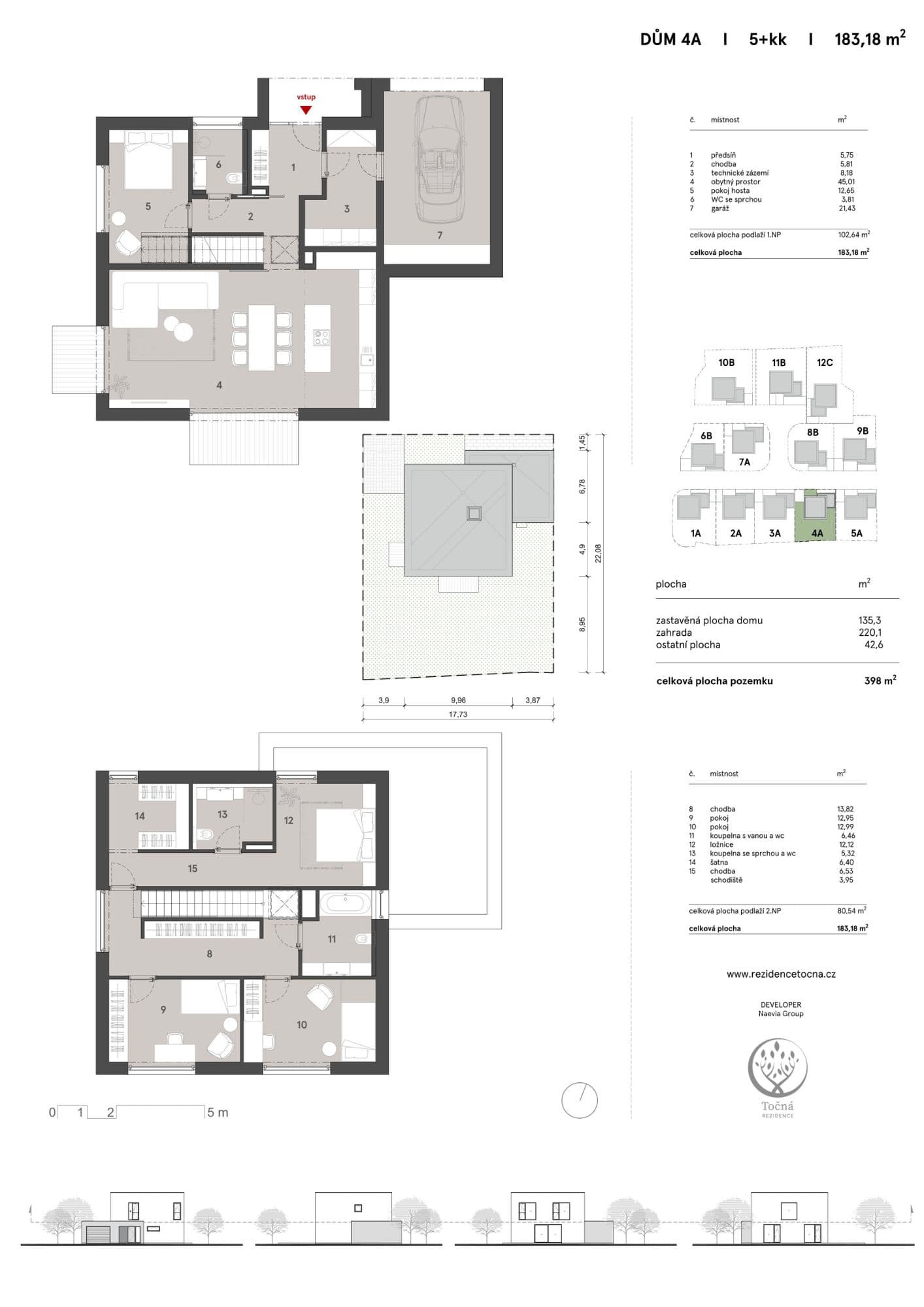
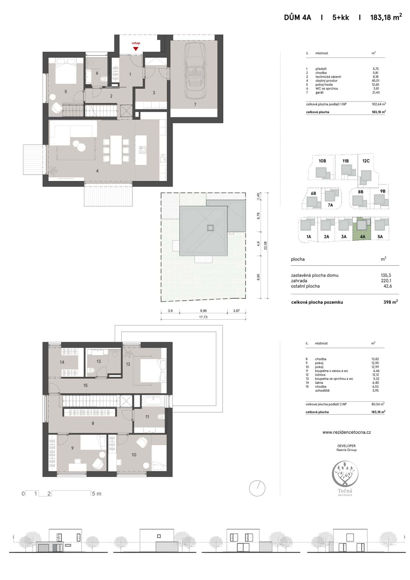
The 4-bedroom layout with a usable area of 183 sqm is divided is divided into two living zones. The ground floor includes an entrance hall with a utility room connected to the garage and an open-plan living space with a kitchen and dining area of 45 sqm. Large-format aluminum windows bring in abundant daylight from two directions and connect the interior with terraces and a sunny south-facing garden. A separate room with a bathroom can be used as a study or guest room.
The second floor offers a master bedroom with a walk-in closet and private bathroom, two additional bedrooms, a spacious family bathroom, and practical storage areas.
Equipment
Each home is equipped with an air-to-water heat pump, underfloor heating, and heat recovery ventilation for a healthy indoor climate and energy-efficient operation. Standard features include aluminum triple glazing, wooden floors, bathroom furniture, external blinds, preparation for photovoltaic panels, and an electric vehicle charging socket. The property meets Energy Class A energy efficiency.
Locality
Tocna stands out for its peaceful atmosphere and abundant greenery while maintaining quick access to the city center. The project also supports the development of local infrastructure, including a community center for gatherings and shops for everyday needs. Nearby is one of the most respected international schools, Prague British International School.
Property specifications
- Location
- Točná
- Address
- Layout
- 5+kk
- Bedrooms
- 4
- Bathrooms
- 3
- Floor area
- 183 sqm
- Land plot
- 398 sqm
- Garden
- 220 sqm
- Number of floors
- 2
- Parking
- 1x Garage
- Building condition
- Under construction
- Energy efficiency
- A
Are you interested in this property?
Contact us. We’ll be happy to discuss the details.

Gallery
What the property looks like and its surroundings
Floor plan
What you'll find in the property
We’ll help you choose
We’ll help with financing
Property as an investment
Location
What's around the property
Watchdog

