Exclusive
U Cihadel
FELICITY Modern two-storey family house in a newly developed project in the prestigious location of Prague 4 – Tocna
U Cihadel
・
ID 533289
U Čihadel, Točná, Praha 4
€ 1,122,352
€ 1,122,352
FELICITY Modern two-storey family house in a newly developed project in the prestigious location of Prague 4 – Tocna
We offer a modern two-storey family home situated within a newly developed residential project in the attractive area of Prague 4 – Tocna. The development consists of just twelve family houses set in a peaceful environment surrounded by greenery. The Tocna Residence combines privacy, high-quality architectural design, and proximity to nature in a harmonious whole, creating ideal conditions for comfortable family living.
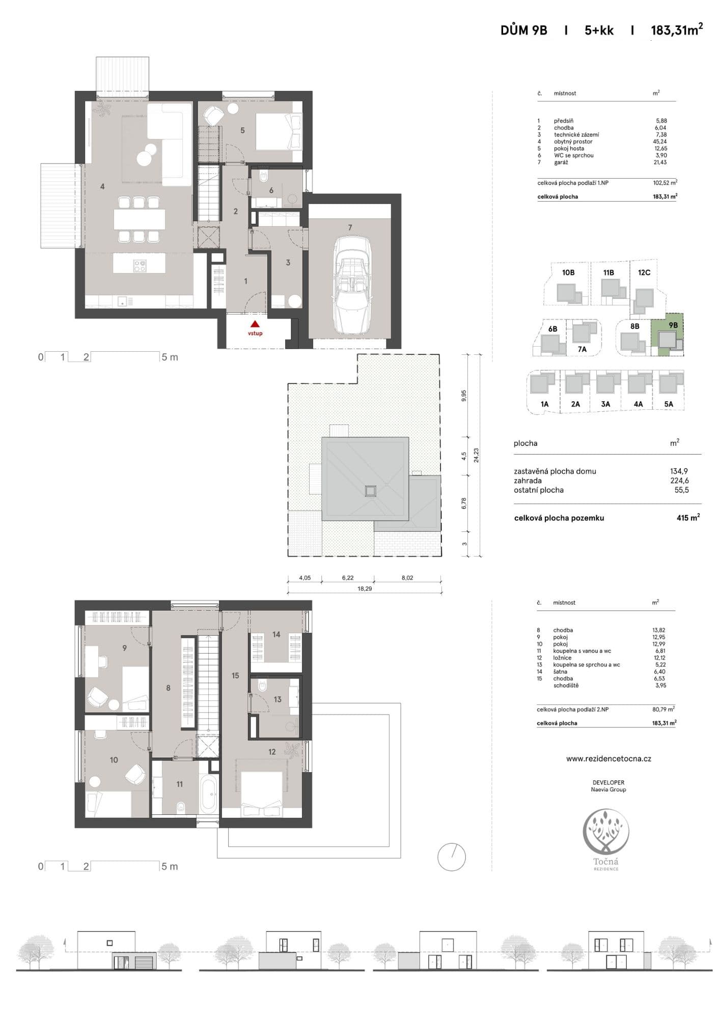
The total usable floor area of the 4-bedroom layout is 183 sqm and is efficiently arranged across two above-ground floors. Upon entering, there is a spacious hallway with a utility room and direct access to the garage, followed by an open-plan living area with a kitchen and dining space measuring 45 sqm. Large-format aluminum windows facing two directions naturally connect the interior with the terraces and the north-facing garden. This floor also includes a separate room and bathroom, suitable as a study or guest room.
Upstairs, you will find the master bedroom with its own walk-in closet and en-suite bathroom, two additional bedrooms, a spacious family bathroom, and ample storage space.
Equipment
Each house is equipped with an air-to-water heat pump, underfloor heating, and a heat recovery ventilation system, ensuring high comfort and low operating costs. Standard features include aluminum triple-glazed windows, wooden floors, quality bathroom fittings, external blinds, preparation for photovoltaic panels, and an electric vehicle charging socket in the garage. The property meets Energy Class A standards.
Locality
Tocna offers an exceptionally quiet and green setting with fast access to the city center and is an ideal choice for families seeking safe, high-quality living away from the bustle of the metropolis. The project also supports the development of local infrastructure. A community center for residents’ gatherings, social events, and family celebrations is planned nearby, along with a self-service grocery store. The prestigious Prague British International School is also close by.
Property specifications
- Location
- Točná
- Address
- Layout
- 5+kk
- Bedrooms
- 4
- Bathrooms
- 3
- Floor area
- 183 sqm
- Land plot
- 415 sqm
- Garden
- 225 sqm
- Number of floors
- 2
- Parking
- 1x Garage
- Building condition
- Under construction
- Energy efficiency
- A
Are you interested in this property?
Contact us. We’ll be happy to discuss the details.

Gallery
What the property looks like and its surroundings
Floor plan
What you'll find in the property
We’ll help you choose
We’ll help with financing
Property as an investment
Location
What's around the property
Watchdog

