Exclusive
Flat Krivoklatska
Bright 2-bedroom flat
Flat Krivoklatska
・
ID 533440
Křivoklátská, Letňany, Praha 9
€ 386,108
€ 386,108
Bright 2-bedroom flat
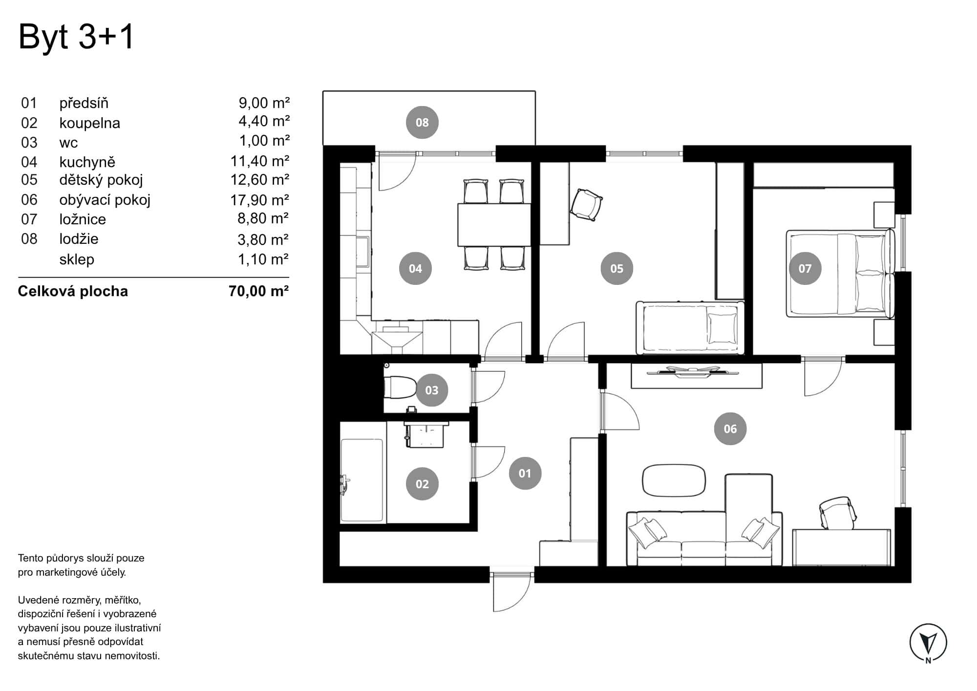
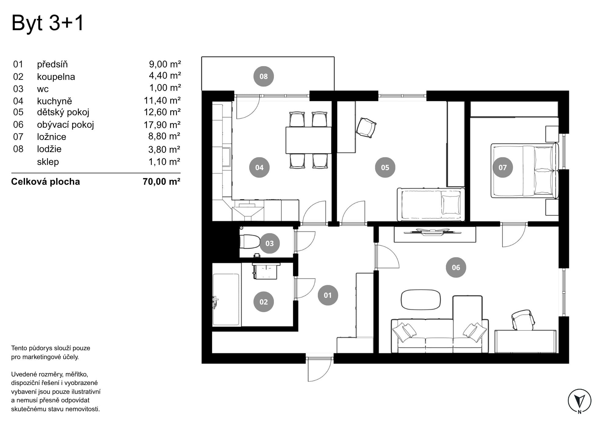
We are offering for sale a spacious 3-bedroom apartment with a total area of 67.55 sqm and a 3.80 sqm balcony, located on the 11th floor of a prefabricated building in Prague 9 – Letnany. The apartment faces south, which means it is bathed in sunlight all day long and feels very bright and airy. The apartment features three spacious rooms: a bedroom measuring 8.80 sqm, a children’s room measuring 12.60 sqm, and a separate living room measuring 17.90 sqm. The apartment also features a separate kitchen measuring 11.40 sqm, equipped with a high-quality, custom-made kitchen unit including appliances; an entryway with built-in closets providing ample storage space; a bathroom; a separate toilet; and a glassed-in balcony. The apartment also includes a basement storage unit. The entire building underwent a complete renovation in 2016, including exterior insulation, renovation of the interior common areas, brick-lined basement storage units, new suspended ceilings, painting, flooring, and the installation of two new elevators.
Equipment
The apartment features laminate flooring, a tiled bathroom, and a separate tiled toilet. The kitchen has recently undergone a complete and extensive renovation, bringing it up to modern standards. The balcony is enclosed with glass and has direct access from the kitchen, providing a pleasant space for relaxation even during the colder months. The apartment is ready for immediate occupancy, yet it can easily be customized to suit the new owner’s personal vision and taste.
Locality
The apartment is located in a highly accessible area with all amenities. Right in front of the building, you’ll find an Albert supermarket and the Frydecka health center; other medical facilities, pharmacies, and a library are just 350 meters away. A school and a preschool are within a 3-minute walk. A bus stop with a connection to the Letňany metro station is about a 5-minute walk away. For shopping and entertainment enthusiasts, the Letnany shopping center with a Cinema City theater is available (about a 9-minute walk). The surrounding area also features Letnany Forest Park (a 15-minute walk), the Lagoon swimming pool, Jumppark, and the Jungle bouldering hall. Parking for Letnany residents is available in front of the building.
Property specifications
- Location
- Letňany
- Address
- Layout
- 3+1
- Bedrooms
- 2
- Bathrooms
- 1
- Floor area
- 67.55 m²
- Cellar
- 1.1 m²
- Floor
- 10
- Orientation
- Southwest
- Balcony
- 3.8 m²
- Facilities
- Elevator
- Building condition
- Very good
- Energy efficiency
- G
Are you interested in this property?
Contact us. We’ll be happy to discuss the details.

Gallery
What the property looks like and its surroundings
Floor plan
What you'll find in the property
We’ll help you choose
We’ll help with financing
Property as an investment
Location
What's around the property
Watchdog

