Villa Za Farou
Timeless luxury family house for sale
Villa Za Farou
・
ID 533307
Za farou, Slivenec, Praha 5
€ 2,204,401
€ 2,204,401
Timeless luxury family house for sale
We offer for sale a bright, south-facing, timeless luxury family house in the attractive location of Prague 5 Slivenec from 2013 with a mature, spacious garden and a beautiful swimming pond.
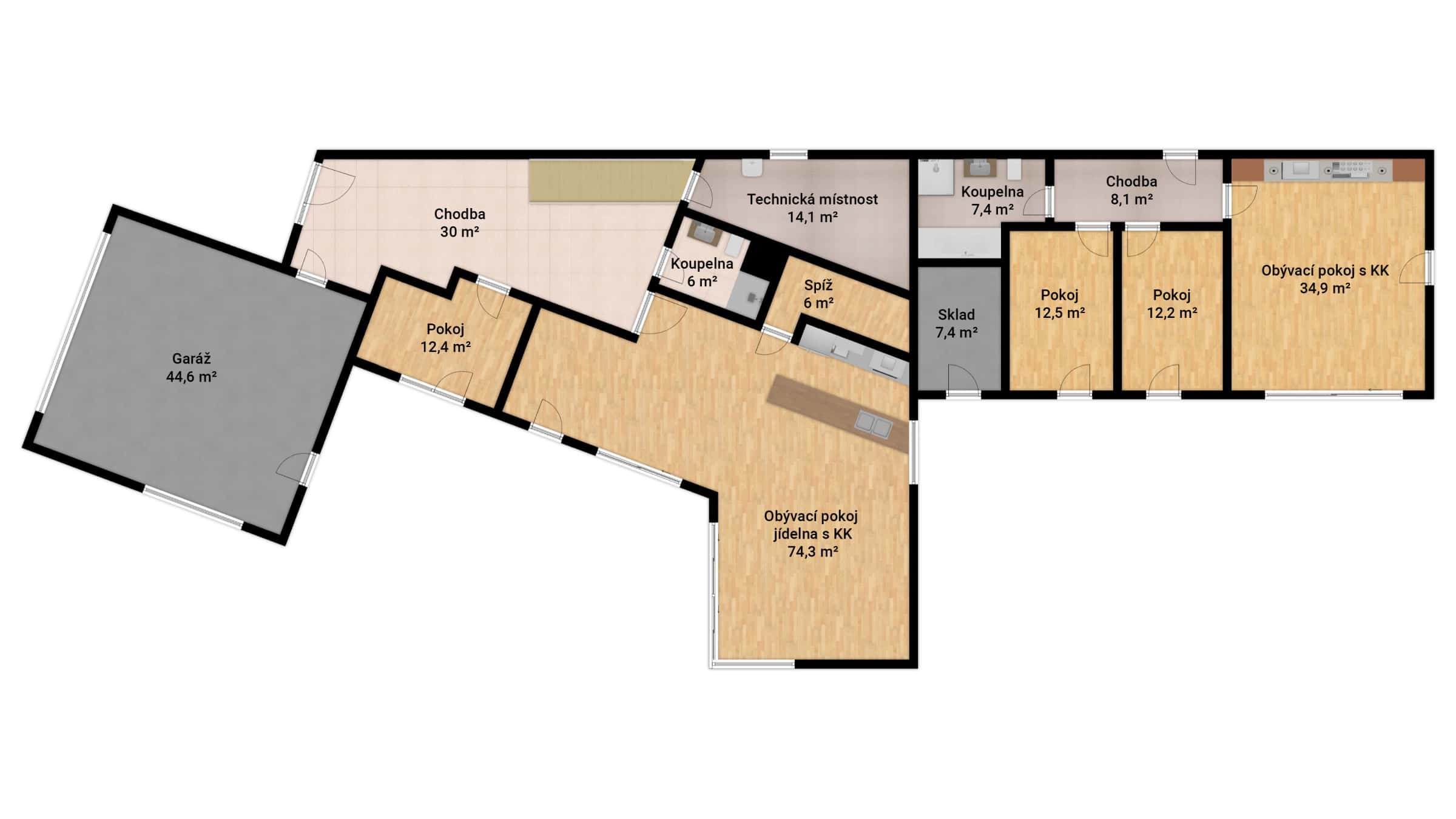
The house is divided into two separate units with separate entrances: The main house with a layout of 5-bedroom and a total usable area of 246.35 sqm (1st floor – 142.8 sqm and garage 44.6 sqm) (2nd floor – 103.55 sqm and 2 terraces with a total size of 28.63 sqm).
Adjacent to the main house is a single-story 2-bedroom unit with a size of 75.1 sqm with a separate entrance, allowing for undisturbed living for the second generation or for visitors.
Equipment
Both parts have direct access to a beautiful, well-maintained garden with a large swimming pond with filtration and irrigation system. The property is heated by a heat pump with underfloor heating, which has low operating costs.
The main house has a garage for two cars and an additional parking space on a paved surface in front of the garage.
The entire perimeter of the property is planted with shrubs and trees, ensuring complete privacy.
Locality
The Prague 5 – Slivenec (Za Farou Street) neighborhood is a quiet residential area with excellent accessibility and complete civic amenities – ideal for family living and an active lifestyle. It is located in a green area close to nature, yet only about 12 km from the center of Prague, with easy access by car or public transport.
Property specifications
- Location
- Slivenec
- Address
- Layout
- 9+kk
- Bedrooms
- 7
- Bathrooms
- 4
- Floor area
- 321.45 sqm
- Land plot
- 1736 sqm
- Garden
- 1393 sqm
- Number of floors
- 2
- Parking
- 2x Garage
- Terrace
- 28.63 sqm
- Building condition
- Very good
- Energy efficiency
- G
Are you interested in this property?
Contact us. We’ll be happy to discuss the details.

Gallery
What the property looks like and its surroundings
Floor plan
What you'll find in the property
We’ll help you choose
We’ll help with financing
Property as an investment
Location
What's around the property
Watchdog

