Exclusive
U Cihadel
LILLY Modern two-storey family house in a newly developed project in the prestigious location of Prague 4 – Tocna
U Cihadel
・
ID 533285
U Čihadel, Točná, Praha 4
€ 1,049,342
€ 1,049,342
LILLY Modern two-storey family house in a newly developed project in the prestigious location of Prague 4 – Tocna
We offer a modern two-storey family home in a newly developed project in the prestigious location of Tocna. The complex features only twelve family houses set in a quiet area surrounded by greenery. The Tocna Residence combines privacy, high-quality architecture, and nature into a harmonious whole, creating an ideal environment for comfortable family living.
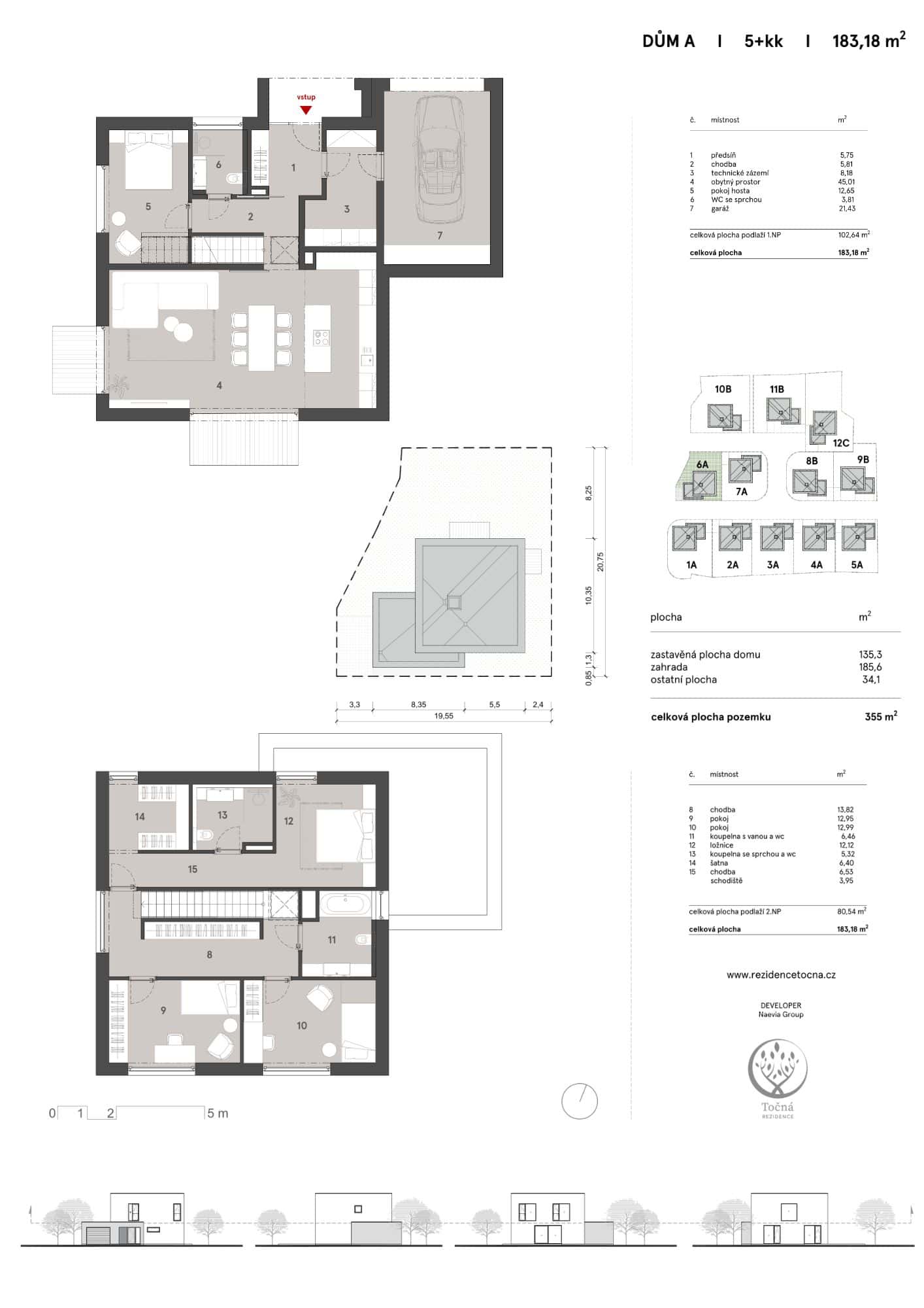
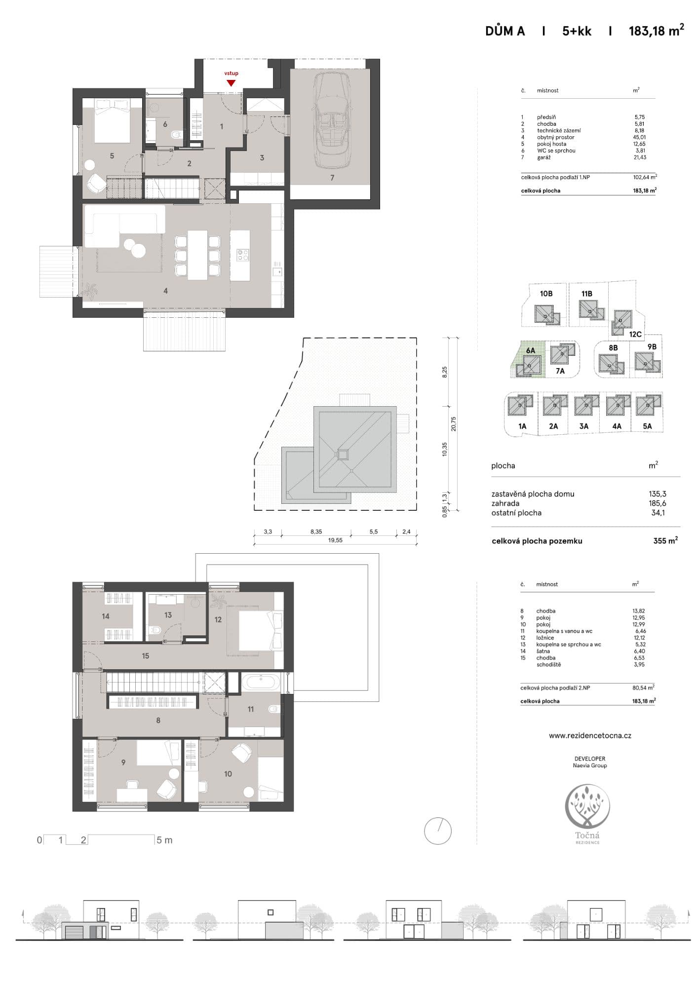
The total usable floor area of the 4-bedroom house is 183 sqm, thoughtfully distributed across two above-ground floors. At the entrance, there is a spacious hallway with a utility room connected to the garage, followed by an open-plan living room with a dining area and kitchen with a total size of 45 sqm. The living area features large-format aluminum windows facing two directions, seamlessly connecting the interior with the terraces and the north-facing garden. This floor also includes a separate room and a bathroom, which can be used as a study or guest room.
The second floor offers a master bedroom with its own walk-in closet and en-suite bathroom, two additional bedrooms, a spacious family bathroom, and ample storage space.
Equipment
Each house is equipped with an air-to-water heat pump, underfloor heating, and a heat recovery ventilation system, ensuring high comfort and low operating costs. Standard features include aluminum windows with triple glazing, wooden floors, high-quality bathroom fittings, external blinds, preparation for photovoltaic panels, and an electric vehicle charging socket in the garage. The property will meet Energy Class A standards.
Locality
The project is located on U Cihadel Street, with construction currently underway and completion planned in autumn 2027. Tocna offers an exceptionally peaceful and green environment with quick access to Prague’s city center, making it an ideal choice for families seeking safe, high-quality living away from the hustle and bustle, without sacrificing big-city convenience. The project also contributes to the development of local infrastructure. A new community center will be built nearby for resident gatherings, social events, and family celebrations, complemented by a self-service grocery store for everyday needs. Close by is one of the most prestigious international schools, Prague British International School.
We would be pleased to offer you the opportunity of an in-person meeting, including on site, where we can present the residential concept to you in detail.
Property specifications
- Location
- Točná
- Address
- Layout
- 5+kk
- Bedrooms
- 4
- Bathrooms
- 3
- Floor area
- 183 sqm
- Land plot
- 355 sqm
- Garden
- 169 sqm
- Number of floors
- 2
- Parking
- 1x Garage
- Building condition
- Under construction
- Energy efficiency
- A
Are you interested in this property?
Contact us. We’ll be happy to discuss the details.

Gallery
What the property looks like and its surroundings
Floor plan
What you'll find in the property
We’ll help you choose
We’ll help with financing
Property as an investment
Location
What's around the property
Watchdog

