Villa V Sareckem udoli
Exclusive villa in the heart of Sarecke udoli – privacy, prestige, and timeless luxury
Villa V Sareckem udoli
・
ID 533174
V Šáreckém údolí, Dejvice, Praha 6
€ 2,052,231
€ 2,052,231
Exclusive villa in the heart of Sarecke udoli – privacy, prestige, and timeless luxury
We offer you an exceptional three-story family house in a gated community in one of the most prestigious locations in Prague 6 – in Dejvice, right in the Sarecke Udoli. The villa stands on an end, south-facing plot with a professionally landscaped garden of 295.1 sqm and offers maximum privacy, peace and comfort of five-star living.
The dominant feature of the house is the magnificent living space with a dining room and designer kitchen with a cooking island and Siemens appliances, complemented by a large pantry. Large windows connect the interior with the south-facing garden and a covered terrace measuring 14.17 sqm, which can be comfortably used all year round. The ground floor also offers a guest room or study and a bathroom with a shower. The entire space feels exceptionally bright, airy, and representative.
Upstairs, there is a master bedroom with its own dressing room and a luxurious bathroom with a bathtub and shower, two additional bedrooms, a second bathroom, and a quiet hall ideal for relaxation. A circular skylight runs through the center of the house, bringing daylight down to the ground floor. A unique feature is the 9.21 sqm winter garden, suitable as a study, studio, or private lounge.
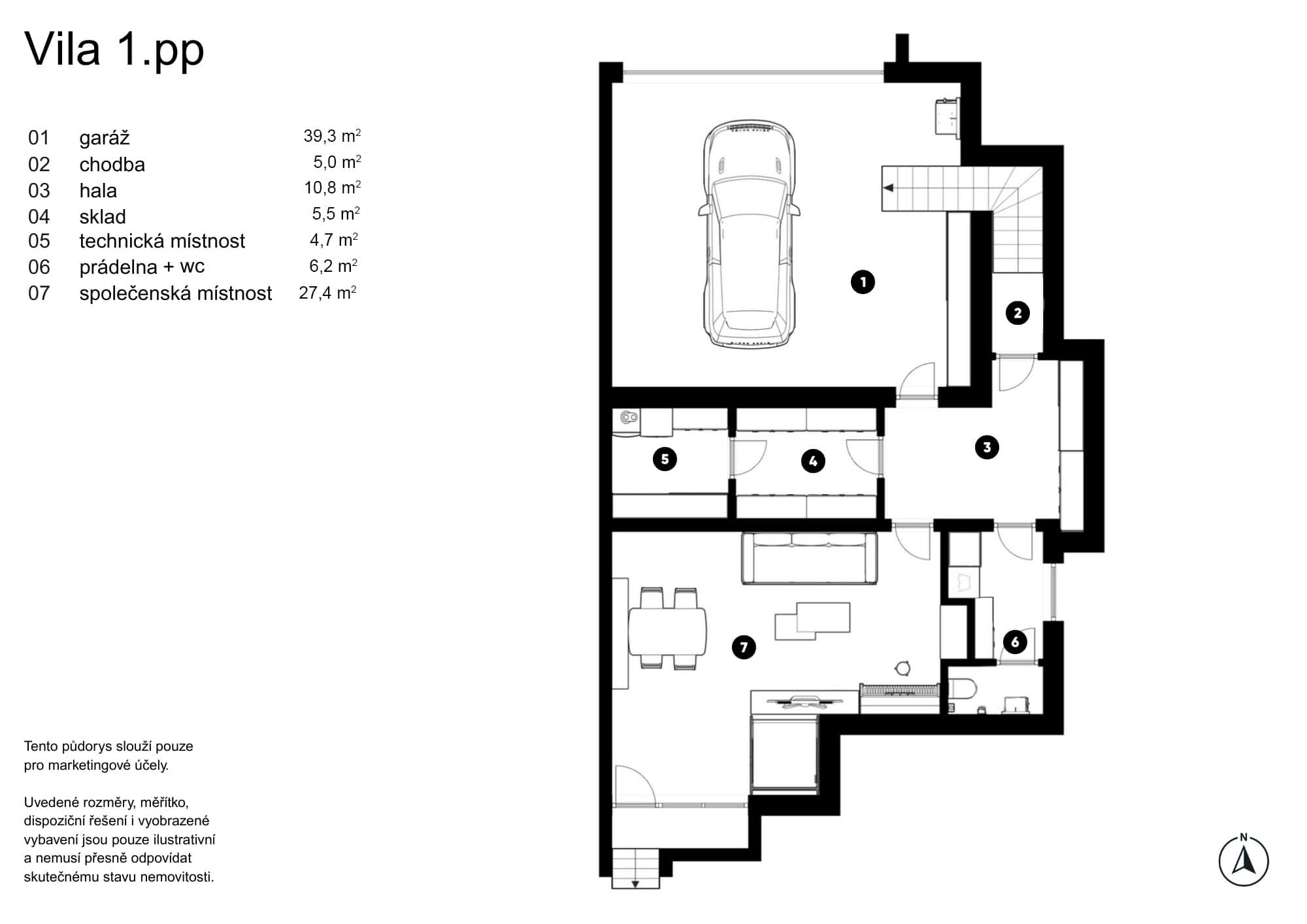
The basement has a separate apartment with a kitchen and bathroom, with access to the garden – ideal for guests, a nanny, or multigenerational living. There is also a utility room, storage rooms, and direct access to the garage with a heated driveway and two charging stations for electric cars.
This villa is the ideal choice for discerning clients looking for prestigious, secure, and truly exceptional living in a green setting, yet in close proximity to the center of Prague.
Equipment
The house is equipped with above-standard technologies: heat recovery, air conditioning, underfloor heating, gas condensing boiler, intelligent heating control, Lutron dimmable lighting, camera system, and security. The doors are non-rebated and tall. The floors in the house are wooden, the wooden windows have triple glazing and automatically controlled external blinds. The interior is furnished with high-quality, custom-made furniture, which can be included in the sale by agreement.
Locality
This exclusive residential complex, designed by the Archicraft studio, offers a reception, 24-hour security, a private park, a pond, a children's playground, and a social club. The entire complex is set in a natural park in the immediate vicinity of Divoka and Ticha Sarka, yet with excellent access to the city center, the Bořislavka and Veleslavin metro stations, trams, and Vaclav Havel Airport (within 10 minutes). There are prestigious international schools (ISP, Riverside School) and high-quality state and private educational facilities in the vicinity.
Information
- Read information for buyers
- Price
- €2,052,231
- Status
- Available
- Availability
- immediately
- Investment
- Yes
- ID
533174
Property specifications
- Location
- Dejvice
- Address
- Layout
- 6+kk
- Bedrooms
- 5
- Bathrooms
- 3
- Floor area
- 284.87 sqm
- Land plot
- 423 sqm
- Garden
- 295 sqm
- Cellar
- 16.38 sqm
- Number of floors
- 2
- Parking
- 1x Garage
- Terrace
- 23.4 sqm
- Facilities
- Air conditioning
- Building condition
- New building
- Energy efficiency
- D
Are you interested in this property?
Contact us. We’ll be happy to discuss the details.

Gallery
What the property looks like and its surroundings
Floor plan
What you'll find in the property
We’ll help you choose
We’ll help with financing
Property as an investment
Location
What's around the property
Watchdog

