Byty u Dunaje
Luxury Apartments in the central area of Vienna
Byty u Dunaje
・
ID 1073
Aglerweg, Vídeň, Austria
from € 582,281
from € 582,281
About property
Luxury Apartments in the central area of Vienna
For sale are units in a unique location in the central area of Vienna - Kaisermühlen, on an island between the old and new Danube. It is located in a quiet cul-de-sac in a recreational area, but at the same time it is only a few metro stops from the nearby Alte Donau metro station to St. Stephans Dom. The project was completed on 07/2023.
The attractive area of the Old Danube and the Danube Island offers many sporting opportunities and, thanks to the surrounding greenery, opportunities for relaxation. The shopping centre, primary and kindergarten schools, banks and pharmacies are only a few minutes walk away. The city centre can be reached in less than 30 minutes by public transport.
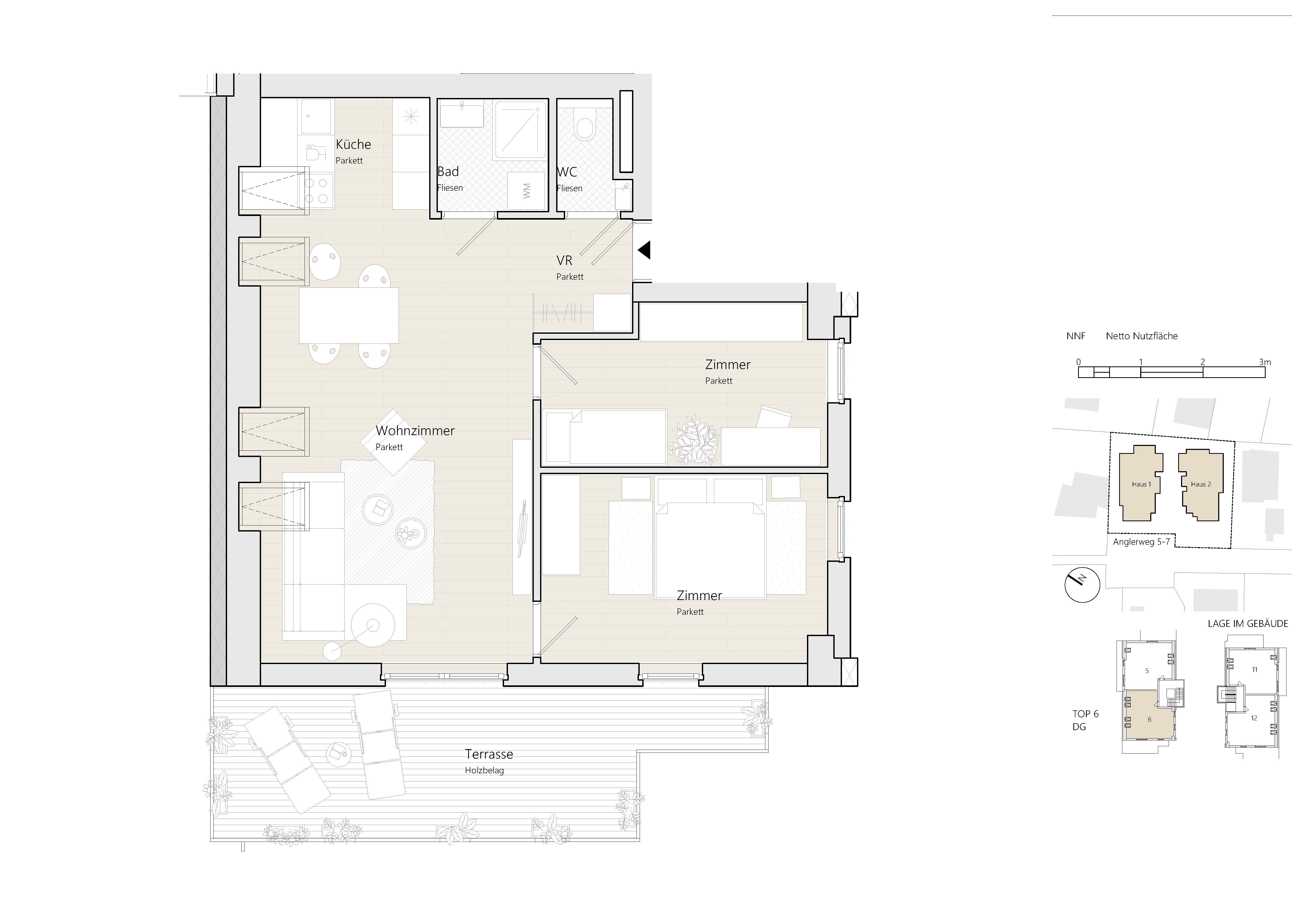
The last two 3-bedroom apartments and one 4-bedroom apartment are available in the project. The apartments are finished to a high standard - three-layer wooden floors, wooden windows with triple glazing, security entrance doors, underfloor heating, Laufen, Boch and Hans Grohe fittings, Hueppe shower enclosures. The apartments have air conditioning (or complete air conditioning), external blinds and spacious terraces with wooden floors. Each apartment comes with a parking space on its own plot with an electrically operated gate and a celar.
Information
- Read information for buyers
- Price
- €582,281 - €921,895
- Building condition
- ready for occupancy
- Availability
- immediately
- Disposition
- 3+kk - 4+kk
- Number of units
- 2/12 available
- ID
1073
Property specifications
- Address
Payment process
1
Pre-reservation
verbal
2
Reservation
contract
3
Sold
Units offer (3)
What properties are available at this address
525874 | Apartment | 2 | 3+kk | 72.15 m² | 9.3 m² | – | - | Sold | ||
525873 | Apartment | 1 | 3+kk | 72.7 m² | 19.45 m² | – | €582,281 | Available | ||
525872 | Apartment | 1 | 4+kk | 116.3 m² | 23.4 m² | – | €921,895 | Available |
We’ll help you choose
We’ll help with financing
Property as an investment
Are you interested in this property?
Contact us. We’ll be happy to discuss the details.

Gallery
What the property looks like and its surroundings
Location
What's around the property
Watchdog

