Apartment Holeckova
Luxury 3-bedroom apartment with 3 terraces, garden, cellar and parking is situated in a new residential project with reception in Prague 5 - Smichov
Apartment Holeckova
・
ID 528243
Holečkova, Smíchov, Praha 5
€ 5,594
+ €1,304 fees
€ 5,594
+ €1,304 fees
Luxury 3-bedroom apartment with 3 terraces, garden, cellar and parking is situated in a new residential project with reception in Prague 5 - Smichov
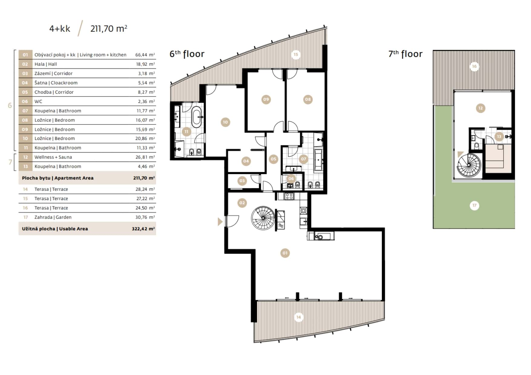
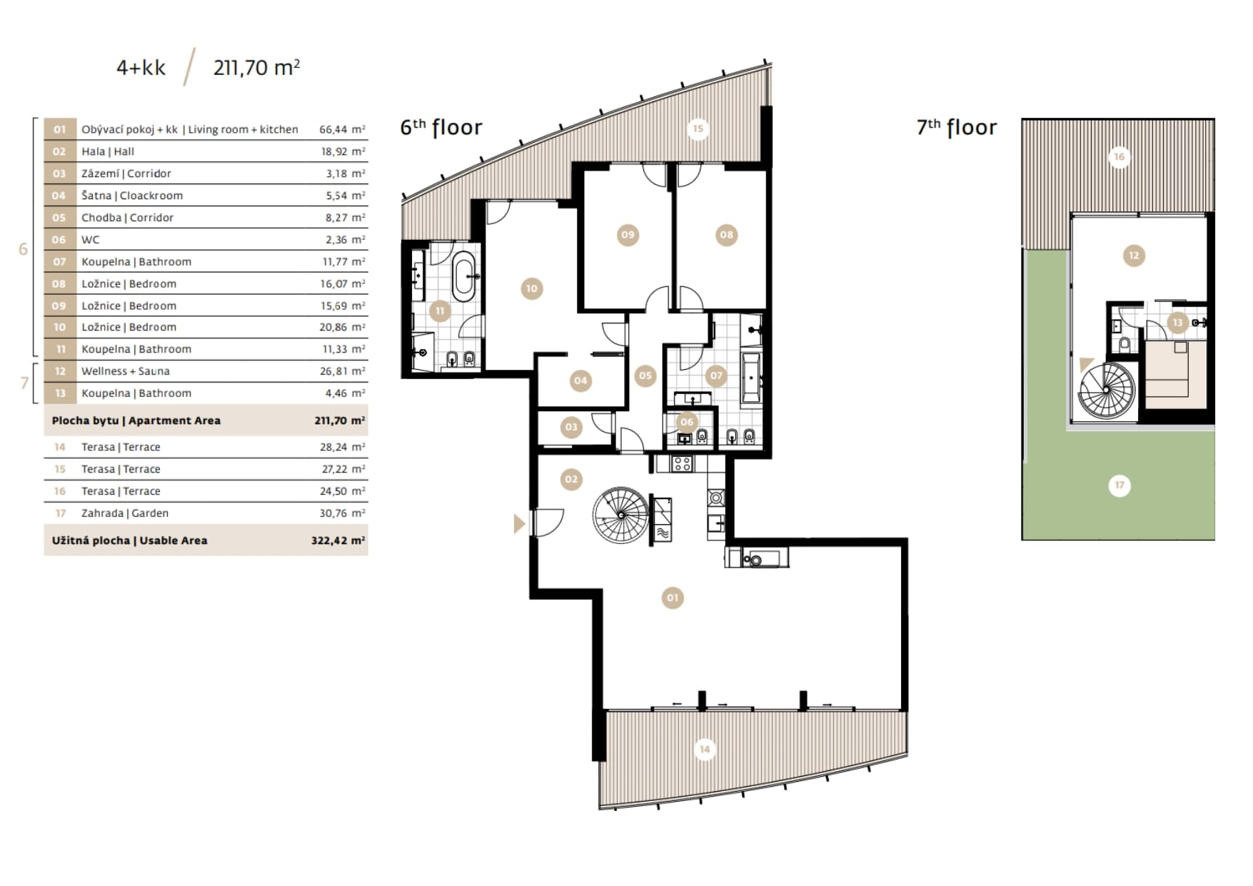
Attractive location of Prague 5 - Smichov district is a wonderful place to live, close to several parks and with great transport links. We would like to present you with a luxurious, unfurnished three-bedroom duplex apartment for rent (212 sqm) with 3 imposing terraces (28, 27 and 25 sqm), a garden (31 sqm) and with a private wellness with sauna that is a part of a newbuilt apartment project.
The apartment is located on the 6th floor and offers a living room with a fireplace and a kitchenette, from which there is also access to the terrace (28 sqm). The unit also offers 3 bedrooms with access to the terrace (27 sqm), 3 bathrooms, a dressing room, and a separate toilet. The upper level of the apartment consists of a private wellness area with a sauna and access to the roof terrace (25 sqm) and garden (31 sqm). The wellness area can be used directly in the residential project for a membership fee of CZK 2500/month. It is possible to rent garage parking space for EUR 230 + VAT per month. The Prisma Institute fitness center is also located on the ground floor of the residence.
Equipment
The interior of the apartment is equipped with kitchen appliances including a ceramic hob, oven, refrigerator, freezer, dishwasher, and microwave oven. The apartment has three bathrooms, all equipped with a bathtub, one of which also has a shower. Two bathrooms include a toilet and bidet. The apartment has a cellar.
Locality
The unique location of Holeckova ulice has great transport links, all civic amenities and a wealth of cultural options, for example in the nearby Svanda Theatre, Novy Smichov Shopping Centre, Cinema City Novy Smichov and CineStar Andel. Families with children will certainly appreciate the multiple children’s playgrounds, primary schools, kindergartens, secondary schools and grammar schools. Good connection to international schools in Prague 5. You can enjoy romantic walks and pleasant relaxation in the nearby parks Dienzenhoferovy sady, Sacré Coeur, Petrinske sady and zahrada Kinskych.
The amount of billable monthly advances for utilities, energy and internet is 150 CZK/sqm/month + VAT.
An interested client is aware of the need to pay a commission totalling one month’s rent plus VAT.
If you cannot view the property in person, we also offer you a video tour from the comfort of your home in real time via Messenger, WhatsApp and other communication platforms.
Information
- Read information for tenants
- Rental fee
- €5,594
- Monthly fees
- €1,304
- Status
- Available
- Availability
- immediately
- ID
528243
Property specifications
- Location
- Smíchov
- Address
- Layout
- 4+kk
- Bedrooms
- 3
- Bathrooms
- 3
- Floor area
- 211 m²
- Front garden
- 31 m²
- Cellar
- 8 m²
- Floor
- 5
- Orientation
- South
- Terrace
- 80 m²
- Facilities
- Swimming pool, Elevator, Sauna, Air conditioning
- Furnishing
- Unfurnished
- Building condition
- New building
- Energy efficiency
- B
Are you interested in this property?
Contact us. We’ll be happy to discuss the details.

Gallery
What the property looks like and its surroundings
Floor plan
What you'll find in the property
We’ll help you choose
Safety and reliability
It doesn’t end with the signature
Location
What's around the property
Watchdog

