Villa Ke Dvoru
Exclusive villa of 827 sqm with tennis court, swimming pool and sauna situated in the heart of Prague 6
Villa Ke Dvoru
・
ID 525016
Ke Dvoru, Vokovice, Praha 6
+ €1,648 fees
+ €1,648 fees
Exclusive villa of 827 sqm with tennis court, swimming pool and sauna situated in the heart of Prague 6
We offer for rent a unique villa of generous size of 827 sqm with indoor pool, sauna and beautifully maintained garden including tennis court. The villa is situated on a plot of 8 000 sqm and is situated in a quiet area of an attractive location of Prague 6 with all amenities and good transport infrastructure.
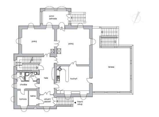
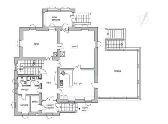
This sensitively renovated villa for rent, with an emphasis on preserving the original architectural features, is surrounded by a carefully maintained garden with a tennis court, fountain, and gazebo. The entrance floor offers a hall with an original staircase, a spacious living room and access to a spacious study, a representative dining room with a fully equipped kitchenette, and a winter garden. The remaining floors have a total of 7 bedrooms, 5 bathrooms, and 2 additional kitchens.
Equipment
The basement of the property features a large swimming pool, sauna, relaxation room, and utility room. Parking is available in a covered garage with two parking spaces or directly on the property. The property is also equipped with an alarm, intercom, and security system. The interior of the house offers a spacious living room with a fireplace.
Locality
The property is located in a residential part of Prague 6. The location combines the advantage of living close to greenery and the advantages of a big city. The area has excellent public transport links (trams, Nadrazi Veleslavin metro station) and connections to the motorway ring road (7 minutes) and Vaclav Havel Airport (11 minutes) by car. Within walking distance you will find complete civic amenities - children’s playgrounds, a pharmacy, a post office, Borislavka Shopping centre, supermarkets, local shops, restaurants, cafés and a natural swimming pool. There are several kindergartens and primary schools, a grammar school and international schools - International School of Prague, Riverside School, Prague British international school, in the area. You can use the nearby Sarka Nature Park with Dzban recreational reservoir and Tresnovka Park for leisure activities.
The amount of billable monthly deposits is 40 000 CZK + electricity and gas is transferred to the tenant.
The inquiring client agrees to pay a commission of 1 month's rent plus VAT.
If you cannot view the property in person, we also offer you a video tour from the comfort of your home in real time via Messenger, WhatsApp and other communication platforms
Information
- Read information for tenants
- Price
- on request
- Monthly fees
- €1,648
- Status
- Available
- Availability
- immediately
- ID
525016
Property specifications
- Location
- Vokovice
- Address
- Layout
- 9+3
- Bedrooms
- 7
- Bathrooms
- 5
- Floor area
- 827 m²
- Land plot
- 8510 m²
- Number of floors
- 3
- Parking
- 1x Garage, 1x Parking on property
- Facilities
- Swimming pool, Sauna
- Furnishing
- Partially furnished
- Building condition
- Very good
- Energy efficiency
- G
Are you interested in this property?
Contact us. We’ll be happy to discuss the details.

Gallery
What the property looks like and its surroundings
Floor plan
What you'll find in the property
We’ll help you choose
Safety and reliability
It doesn’t end with the signature
Location
What's around the property
Watchdog

