Byt Břehová
Luxusní byt 3+1 po rekonstrukci se zachovanými původními prvky situovaný v srdci metropole na Praze 1 - Staré Město
Byt Břehová
・
ID 523624
Břehová, Josefov, Praha 1
73 000 Kč
+ 8 000 Kč poplatky
73 000 Kč
+ 8 000 Kč poplatky
Luxusní byt 3+1 po rekonstrukci se zachovanými původními prvky situovaný v srdci metropole na Praze 1 - Staré Město
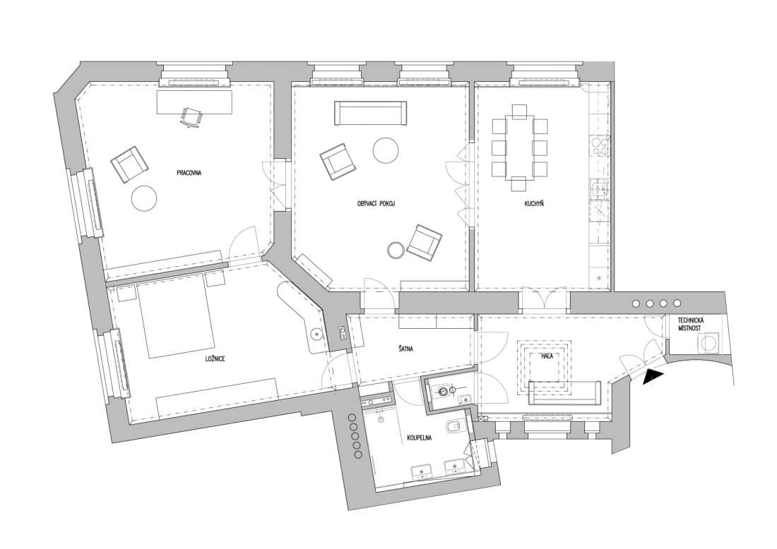
Zrekonstruovaný byt k pronájmu o dispozici 3+1 a výměře 142 m2 situovaný v prestižní lokalitě Prahy 1 - Staré Město. Renovovaný dům, v němž se byt nachází, stojí jen pár desítek metrů od nábřeží Vltavy a v bezprostřední blízkosti Staronové synagogy a mnoha dalších památek.
Velkoryse rekonstruovaný a plně zařízený byt 3+1 se zachovanými původními prvky se nachází ve 4. nadzemním podlaží domu s výtahem z přelomu 19. a 20. století. Dispozice bytu nabízí prostornou vstupní halu, dvě ložnice, obývací pokoj, kompletně vybavenou kuchyni, koupelnu, samostatnou toaletu, šatnu a technickou místnost.
Vybavení
Byt se nabízí plně zařízený a mezi jeho vybavení patří kompletně vybavená kuchyně se spotřebiči, včetně sporáku, trouby, mikrovlnné trouby, myčky nádobí, lednice s mrazákem, vinotéky a kávovaru. Interiér dále doplňují dřevěné parketové podlahy a dlažba. K dispozici jsou bezpečnostní vstupní dveře a vestavěné úložné prostory, které zajišťují dostatek místa pro praktické uskladnění. Zařízení bytu je provedeno ve vysokém standardu s důrazem na kvalitu, komfort a smysl pro detail.
Lokalita
Budova se nachází v jedinečné lokalitě Prahy 1 - Staré Město, v samém srdci historického jádra Prahy. V docházkové vzdálenosti je Staroměstské náměstí, Týnský chrám, Rudolfinum, Karlův most, Klášter sv. Anežky České, Starý židovský hřbitov a celá řada dalších významných kulturních i architektonických památek. V místě je velmi dobrá občanská vybavenost, jsou zde obchody, služby, restaurace, kavárny, divadla, galerie, zdravotnické zařízení. Výborná je rovněž dopravní dostupnost - cesta na stanici metra trasy A Staroměstská trvá pouze pět minut. Autem je z místa pohodlně dostupná Pražská magistrála.
Poptávající klient je srozuměn s úhradou provize ve výši 1 měsíčního nájmu plus DPH.
Pokud si nemovitost nemůžete prohlédnout osobně, nabízíme Vám také videoprohlídku z pohodlí Vašeho domova v reálném čase přes Messenger, WhatsApp a další komunikační platformy.
Informace
- Přečtěte si informace pro nájemníky
- Nájemné
- 73 000 Kč
- Měsíční poplatky
- 8 000 Kč
- Status nemovitosti
- Volný
- Dostupnost
- červen 2026
- ID
523624
Specifikace nemovitosti
- Lokalita
- Josefov
- Adresa
- Dispozice
- 3+1
- Ložnice
- 2
- Koupelny
- 1
- Podlahová plocha
- 142 m²
- Podlaží
- 4
- Orientace
- Sever
- Vybavení
- Výtah
- Zařízení
- Zařízeno
- Stav stavby
- Velmi dobrý
- Energetická náročnost
- G
Máte o tuto nemovitost zájem?
Spojte se s námi. Rádi s vámi probereme detaily.

Galerie
Jak vypadá nemovitost a její blízké okolí
Půdorys
Prozkoumejte dispoziční řešení
Poradíme s výběrem
Bezpečí a jistota
Podpisem nekončíme
Lokalita
Co se nachází v okolí
Sledování novinek v nabídce

