Dům u Madony
O nemovitosti
Informace
- Přečtěte si informace pro nájemníky
- Cena
- na vyžádání
- Stav stavby
- k nastěhování ihned
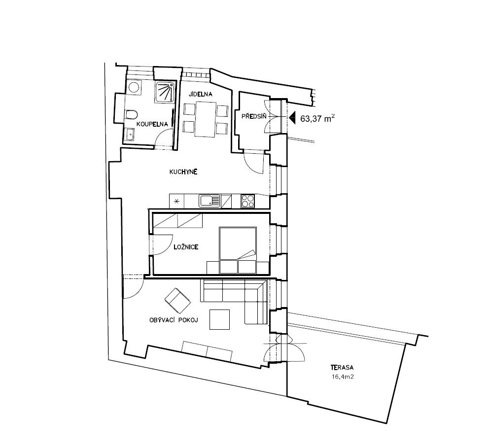
- Dispozice
- 1+1 -
- Počet jednotek
- 0/27 dostupných
- ID
399
Specifikace nemovitosti
- Lokalita
- Praha
- Adresa
Máte zájem o více informací? Kontaktujte nás
Platební podmínky
1
Předrezervace
ústní
2
Rezervace
smlouva
3
Prodáno
Poradíme s výběrem
Díky 30 letům zkušeností na realitním trhu najdeme pronájem přesně podle vašeho vkusu.
Bezpečí a jistota
Pronajímatele prověřujeme, byty důkladně kontrolujeme a budeme s vámi i u předání. Ať se vám bydlí příjemně.
Podpisem nekončíme
Poradíme s převody energií, doporučíme stěhovací firmu i školku pro děti. Expatům rádi poskytneme péči navíc.
Máte o tuto nemovitost zájem?
Spojte se s námi. Rádi s vámi probereme detaily.

Galerie
Jak vypadá nemovitost a její blízké okolí
Sledování novinek v nabídce

