Rodinný dům U hostivařského nádraží

U hostivařského nádraží, Praha 10, Horní Měcholupy
ID: 532018
33 137 600 Kč

Rodinný dům U hostivařského nádraží

U hostivařského nádraží, Praha 10, Horní Měcholupy
33 137 600 Kč
ID: 532018

Moderní dům 5+KK v klidné pražské lokalitě Golf Hostivař

Dispozice: 5+kk
Velikost: 189m²
Typ nemovitosti: Rodinný dům

O nemovitosti

Hledáte dům v ustálené lokalitě, s moderní architekturou, bezpečným prostředím a okolní přírodou, jinými slovy, ideální bydlení s adresou Prahy? Zveme Vás do areálu Golf Hostivař, kde můžete najít balanc klidové zóny ve městě.

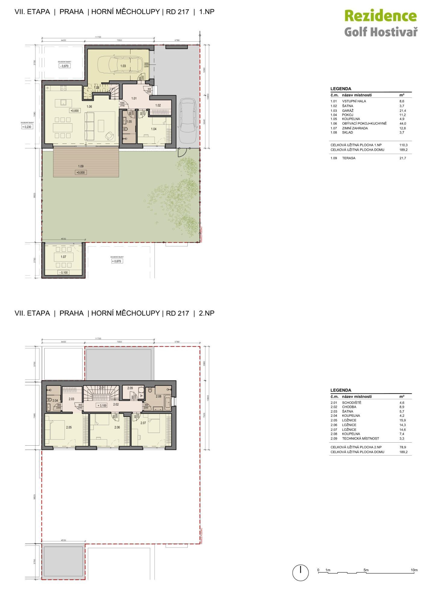
Nabídka domu 5+KK s pozemkem 340 m² s možností výběru interiéru dokončení podle Vašeho vkusu. Přízemí domu zahrnuje vstupní halu, obývací pokoj s kuchyní, ložnici, koupelnu a také garáž pro dva vozy. U obývacího pokoje je obdélníková terasa a navazující zahrada se samostatnou místností, kterou můžete využít podle Vašeho životního stylu. V prvním patře jsou dvě ložnice, koupelna (sprcha, vana), hlavní ložnice se šatnou a vlastní koupelnou a také samostatná místnost pro domácí práce.

Hrubá stavba domu je dokončená a můžete do konce příštího roku bydlet ve vlastním. Cena zahrnuje dokončení, včetně podlah, dveří a koupelen.


Dům má vytápění samostatným plynovým kotlem, hliníková okna s trojsklem, podlahové vytápění a je energetické třídě B. V rámci vlastnictví nemovitosti je také podíl na okolních komunikacích, kde je zajištěný pravidelný servis a údržba v rámci golfového areálu a minimálními náklady.


Rezidence Golf Hostivař je unikátní projekt v Praze 10 – Horních Měcholupech. Celý areál je koncipován jako soukromá čtvrť s kontrolovaným vjezdem, což zajišťuje maximální bezpečí a soukromí obyvatel. Součástí komplexu je 18-ti jamkové golfové hřiště, veřejná klubovna s restaurací a dětské hřiště. Velmi blízko najdete kompletní infrastrukturu a také zastávky MHD.

Mapa lokality

Zobrazit na mapě

Více informací

Parkování : garáž
Balkon/ terasa: 21.7 m²
Sklep: Ne
Velikost pozemku: 340 m²
Patro: 2
Energetický štítek: B

Poradíme vám s výběrem bytu i financováním

Díky dlouholetým zkušenostem a znalostem (nejen) pražského realitního trhu najdeme nemovitost přesně dle vašich představ. Jsme připraveni vám pomoci jak s nákupem, tak se všemi náležitostmi, které s ním souvisejí. Obraťte se na nás.

Kontakt

Mohlo by vás zajímat

BeNice
K Pitkovicům, Praha 10 187 m²
Dostupné ihned
ID: 531167
21 900 000 Kč
Rodinný dům U hostivařského nádraží
U hostivařského nádraží, Praha 10 171 m²
Dostupné ihned
ID: 531925
46 304 320 Kč
Rodinný dům U Velodromu
U Velodromu, Praha 10 75 m²
Dostupné ihned
ID: 532000
Info v RK