O nemovitosti

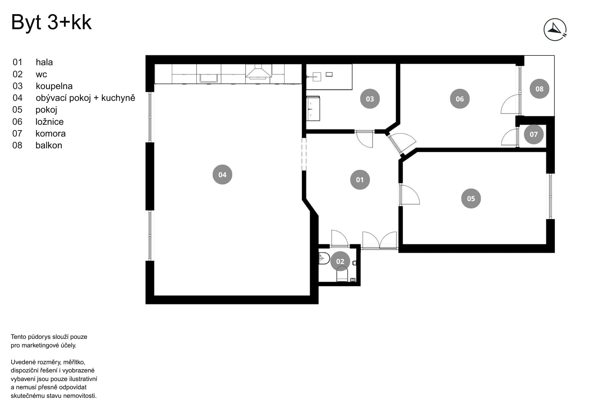
Nabízíme k prodeji prostorný byt 3+kk o rozloze téměř 94 m² v pátém patře secesního domu s výtahem. Nemovitost prošla kompletní rekonstrukcí a nabízí velkorysý obývací pokoj propojený s kuchyní a jídelnou, dvě ložnice, koupelnu, samostatné WC, komoru a vstupní halu. Hlavní obytný prostor je orientován na východ do ulice s výhledem na Španělskou synagogu, ložnice směřují na západ do tichého vnitrobloku, přičemž z menší z nich je vstup na balkón.


Celý byt prošel kvalitní rekonstrukcí s důrazem na moderní design a funkčnost. Podlahy tvoří masivní dubové parkety, mezi místnostmi jsou osazeny elegantní bezfalcové dveře s designovými černými klikami, které harmonicky ladí s tmavými radiátory. Kuchyňská linka v matném antracitovém provedení je vybavena vestavnými spotřebiči značky AEG. Stylová koupelna nabízí prostorný walk-in sprchový kout, dvojumyvadlo s podsvíceným zrcadlem a skříň s pračkou a sušičkou. Vytápění zajišťuje plynový kotel Buderus, okna jsou původní dřevěná špaletová.


Byt se nachází v prestižní čtvrti Josefov, v klidné boční ulici souběžné s luxusní Pařížskou třídou, pouhých pár kroků od Staroměstského náměstí. Tato historická lokalita nabízí jedinečnou atmosféru s bohatým kulturním vyžitím – v bezprostředním okolí najdete Španělskou synagogu, Rudolfinum, Anežský klášter s jeho historickými zahradami, galerie, koncertní síně i širokou škálu vyhlášených restaurací a kaváren. Nechybí zde ani kompletní občanská vybavenost včetně základních i středních škol, lékařských ordinací, bank a kvalitních obchodů. Odpočinek nabízí klidné Alšovo nábřeží s výhledem na Vltavu nebo nedaleké Letenské sady. Dopravní dostupnost je výborná – stanice metra Staroměstská je vzdálená jen několik minut chůze, tramvajové zastávky v okolí pak zajišťují rychlé spojení do všech částí Prahy.

Mapa lokality

Zobrazit na mapě

Více informací

Parkování : Ne
Balkon/ terasa: 2 m²
Sklep: Ne
Energetický štítek: G
Patro: 4
Status nemovitosti: volný

Poradíme vám s výběrem bytu i financováním

Díky dlouholetým zkušenostem a znalostem (nejen) pražského realitního trhu najdeme nemovitost přesně dle vašich představ. Jsme připraveni vám pomoci jak s nákupem, tak se všemi náležitostmi, které s ním souvisejí. Obraťte se na nás.

Kontakt

Mohlo by vás zajímat

U Starého hřbitova
U Starého hřbitova, Praha 1 92 m²
Dostupné ihned
ID: 503729
26 000 000 Kč
Úvoz Hradčany
Úvoz, Praha 1 110 m²
Dostupné ihned
ID: 528158
24 900 000 Kč
Úvoz Hradčany
Úvoz, Praha 1 118 m²
Dostupné ihned
ID: 528159
22 900 000 Kč