Byt Pod Drinopolem
Prostorný byt 2+kk s terasou na prodej
Byt Pod Drinopolem
・
ID 533501
Pod Drinopolem, Břevnov, Praha 6
9 538 000 Kč
9 538 000 Kč
Prostorný byt 2+kk s terasou na prodej
Tento byt o dispozici 2+kk je součástí rezidenčního projektu Pod Drinopolem, který vzniká kompletní rekonstrukcí bytového domu v jedné z nejklidnějších částí Prahy 6. Lokalita uprostřed vilové čtvrti nabízí kombinaci zeleně, soukromí a výborné dostupnosti do centra.
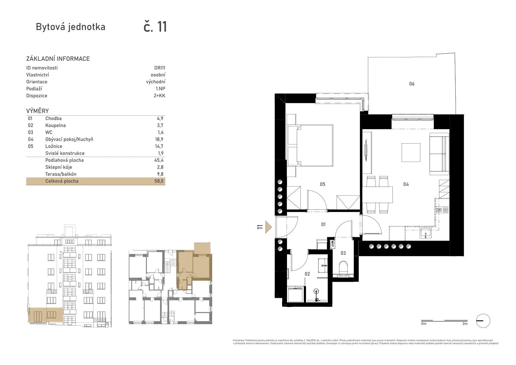
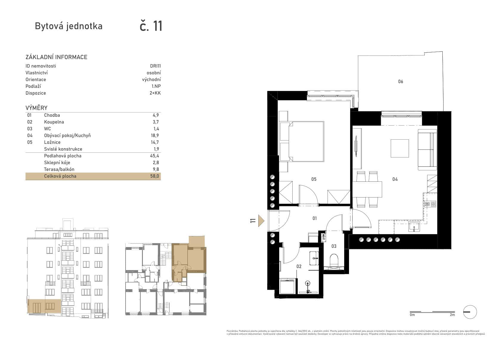
Byt je situován v 1. nadzemním podlaží směrem na východ, což vytváří útulnou atmosféru pro každodenní život i relaxaci.
Dominantou bytu je prostorný obývací pokoj s kuchyňským koutem (18,9 m²), který nabízí dostatek místa pro pohodlné posezení i jídelní část. Na něj navazuje komfortní ložnice o velikosti 14,7 m², poskytující dostatek prostoru pro velkou postel i úložné řešení. Prakticky řešená dispozice dále zahrnuje vstupní chodbu, samostatná toaleta a koupelnu.
K bytu náleží také slunná terasa (9,8 m²) a sklepní kóje (2,8 m²), která slouží ideálně pro uložení sportovního vybavení nebo sezónních věcí.
Vybavení
Dům prochází celkovou rekonstrukcí, jejíž součástí je nový výtah, vstupní portály s bezpečnostními dveřmi a kvalitně provedené společné prostory s keramickou dlažbou a dřevěnými prvky. Obyvatelům bude k dispozici relaxační zóna se saunou a posilovnou, kolárna, prádelna a upravený vnitroblok s klidovou částí a posezením.
Lokalita
Velkou výhodou je atraktivní lokalita Břevnova, která patří mezi nejvyhledávanější rezidenční čtvrti Prahy. V okolí najdete kompletní občanskou vybavenost – obchody, restaurace, kavárny, školy i zdravotní služby. Milovníci přírody ocení blízkost parků a zeleně, zatímco rychlé spojení MHD zajišťuje pohodlný dojezd do centra města.
Tento byt představuje skvělou volbu pro vlastní bydlení i jako investici k pronájmu, a to díky kombinaci kvalitní lokality, praktické dispozice a příjemné atmosféry.
Vizualizace jsou pouze ilustrativní.
Informace
- Přečtěte si informace pro kupující
- Cena
- 9 538 000 Kč
- Status nemovitosti
- Volný
- Dostupnost
- ihned
- Investiční
- Ano
- ID
533501
Specifikace nemovitosti
- Lokalita
- Břevnov
- Adresa
- Dispozice
- 2+kk
- Ložnice
- 1
- Koupelny
- 1
- Podlahová plocha
- 45.4 m²
- Sklep
- 2.8 m²
- Podlaží
- 1
- Orientace
- Východ
- Terasa
- 9.8 m²
- Vybavení
- Výtah, Sauna
- Stav stavby
- Po rekonstrukci
- Energetická náročnost
- F
Máte o tuto nemovitost zájem?
Spojte se s námi. Rádi s vámi probereme detaily.

Galerie
Jak vypadá nemovitost a její blízké okolí
Půdorys
Prozkoumejte dispoziční řešení
Poradíme s výběrem
Pomůžeme s financováním
Nemovitost jako investice
Lokalita
Co se nachází v okolí
Sledování novinek v nabídce

