Byt Jeseniova
Komfortní byt 2+kk
Byt Jeseniova
・
ID 533449
Jeseniova, Žižkov, Praha 3
7 233 000 Kč
7 233 000 Kč
Komfortní byt 2+kk
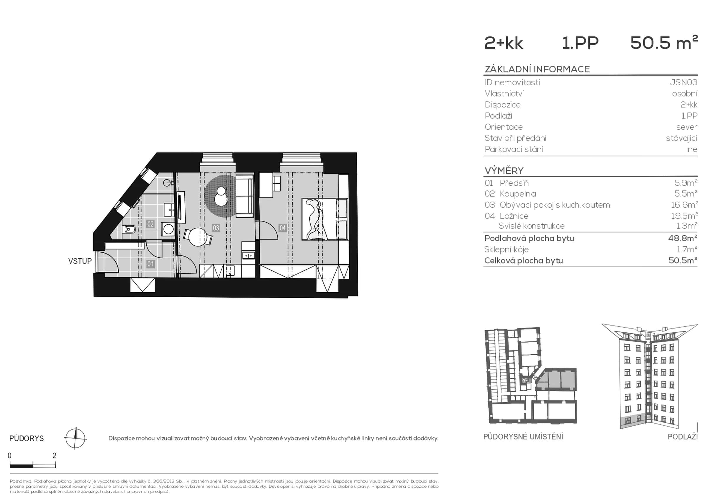
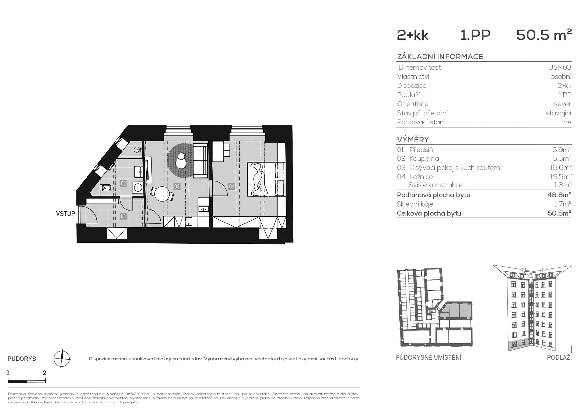
Komfortní byt o dispozici 2+kk a podlahové ploše 48,8 m² se nachází v 1. podzemním podlaží historického domu v Jeseniově ulici na Žižkově, který citlivě propojuje charakter původní architektury s moderním komfortem. Jednotka je ve stavu před rekonstrukcí, což novému majiteli dává plnou svobodu při tvorbě interiéru podle vlastních představ. Při vstupu do domu vás přivítají luxusně zrekonstruované společné prostory s mramorovými obklady, designovým osvětlením z broušeného skla a novým proskleným výtahem.
Vybavení
Dispozice bytu zahrnuje obývací pokoj s přípravou na kuchyňský kout, prostornou ložnici, koupelnu se sprchovým koutem, samostatnou toaletu, komoru a chodbu s dostatkem prostoru pro vestavěné skříně. K jednotce náleží dvě sklepní kóje o celkové výměře 3,2 m². Součástí domu je také upravený vnitroblok s lavičkami a vyvýšenými záhony – příjemné místo pro odpočinek i neformální setkávání s přáteli.
Lokalita
Jeseniova 93 se nachází přímo na Žižkově, v jedné z nejživějších pražských čtvrtí plné kaváren, restaurací, barů a kultury. Pro chvíle klidu slouží park Vítkov – zelené srdce Žižkova s výhledy na město, cyklostezkami i místy pro piknik. V blízkosti se nacházejí také park Židovské pece, Parukářka a sportovní areál Pražačka. Tramvajová zastávka Biskupcova je přímo před domem, zastávka Ohrada je vzdálena jen pár minut chůze a autem se do centra Prahy dostanete do patnácti minut.
Specifikace nemovitosti
- Lokalita
- Žižkov
- Adresa
- Dispozice
- 2+kk
- Ložnice
- 1
- Koupelny
- 1
- Podlahová plocha
- 47.5 m²
- Sklep
- 3.2 m²
- Podlaží
- -1
- Orientace
- Sever
- Vybavení
- Výtah
- Stav stavby
- Před rekonstrukcí
- Energetická náročnost
- E
Máte o tuto nemovitost zájem?
Spojte se s námi. Rádi s vámi probereme detaily.

Galerie
Jak vypadá nemovitost a její blízké okolí
Půdorys
Prozkoumejte dispoziční řešení
Poradíme s výběrem
Pomůžeme s financováním
Nemovitost jako investice
Lokalita
Co se nachází v okolí
Sledování novinek v nabídce

