Exkluzivně
Byt Nad Okrouhlíkem
Prostorný byt 1+kk na prodej
Byt Nad Okrouhlíkem
・
ID 533441
Nad Okrouhlíkem, Libeň, Praha 8
7 990 000 Kč
7 990 000 Kč
Prostorný byt 1+kk na prodej
Hledáte byt vhodný pro vlastní bydlení, nebo na investici?
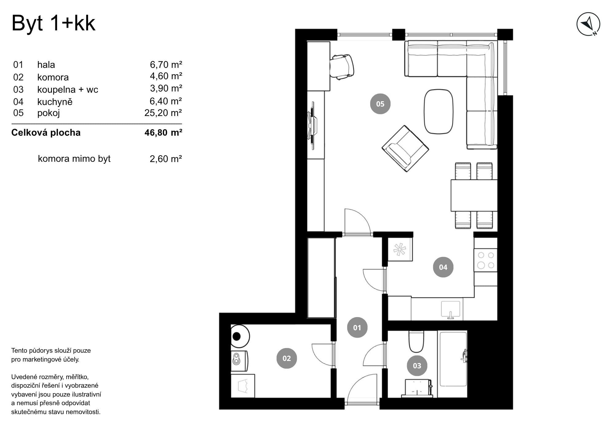
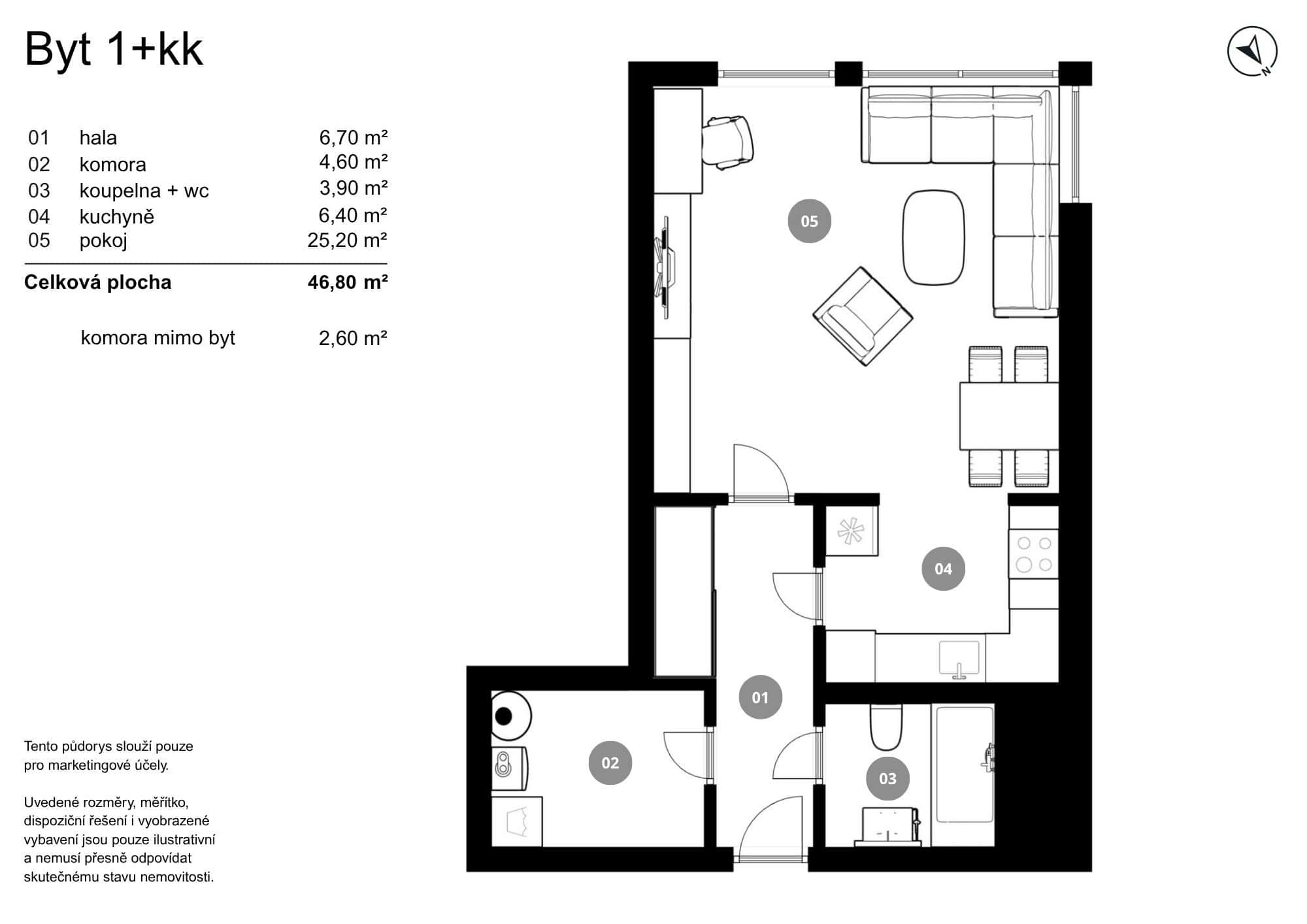
Nabízíme Vám prostorný byt s dispozicí 1+kk o výměře 46,80 m² umístěný v 1. nadzemním podlaží rezidenčního domu, v klidné části Prahy 8, v Libni.
Byt disponuje vstupní halou, obývacím pokojem s odděleným kuchyňským koutem, koupelnou a komorou a je orientovaný na JZ. Podlahy jsou laminátové, v hale a v kuchyňské části je dlažba. Okna jsou plastová s dvojskly.
Topení a ohřev vody je řešen plynovým kotlem, který je umístěn v komoře.
V domě je k dispozici výtah. K bytu náleží další komora o výměře 2,60 m2 v patře.
Parkovací stání ve 2.podzemním podlaží je možné dokoupit samostatně v ceně 890 000,- Kč.
Vybavení
V bytě je kuchyňská linka se spotřebiči Miele a pracovní deskou z umělého kamene Corian, jídelní stůl a židle, sedačka, konferenční stolek, komody a skříně v předsíni. V komoře je pračka a police. Dále je byt vybaven vchodovými bezpečnostními dveřmi, alarmem a venkovními okenními žaluziemi.
Lokalita
Nemovitost se nachází v projektu Obytný soubor Nad Mazankou, který je charakteristický jednotnou architekturou.
Libeň patří mezi vyhledávané lokality díky výborné občanské vybavenosti, dopravní dostupnosti a blízkosti přírody. V okolí se nachází například přírodní park Okrouhlík nebo Čimický háj, ideální pro procházky, sport i rodinné aktivity.
Stanice metra C Ládví je vzdálena pouhých 7 minut chůze. V docházkové vzdálenosti je také obchodní dům Ládví a další služby. Lokalita nabízí rychlé napojení na hlavní dopravní tahy i do centra města.
Informace
- Přečtěte si informace pro kupující
- Cena
- 7 990 000 Kč
- Status nemovitosti
- Volný
- Dostupnost
- ihned
- Investiční
- Ano
- ID
533441
Specifikace nemovitosti
- Lokalita
- Libeň
- Adresa
- Dispozice
- 1+kk
- Koupelny
- 1
- Podlahová plocha
- 46.8 m²
- Podlaží
- 1
- Orientace
- Jihozápad
- Parkování
- 1x Garážové stání
- Vybavení
- Výtah
- Stav stavby
- Dobrý
- Energetická náročnost
- D
Máte o tuto nemovitost zájem?
Spojte se s námi. Rádi s vámi probereme detaily.

Galerie
Jak vypadá nemovitost a její blízké okolí
Půdorys
Prozkoumejte dispoziční řešení
Poradíme s výběrem
Pomůžeme s financováním
Nemovitost jako investice
Lokalita
Co se nachází v okolí
Sledování novinek v nabídce

