Exkluzivně
Výjimečná příležitost na Hanspaulce
Prostorný byt 4+kk s výhledy na Pražský hrad
Výjimečná příležitost na Hanspaulce
・
ID 533199
Na pískách, Dejvice, Praha 6
19 900 000 Kč
19 900 000 Kč
Prostorný byt 4+kk s výhledy na Pražský hrad
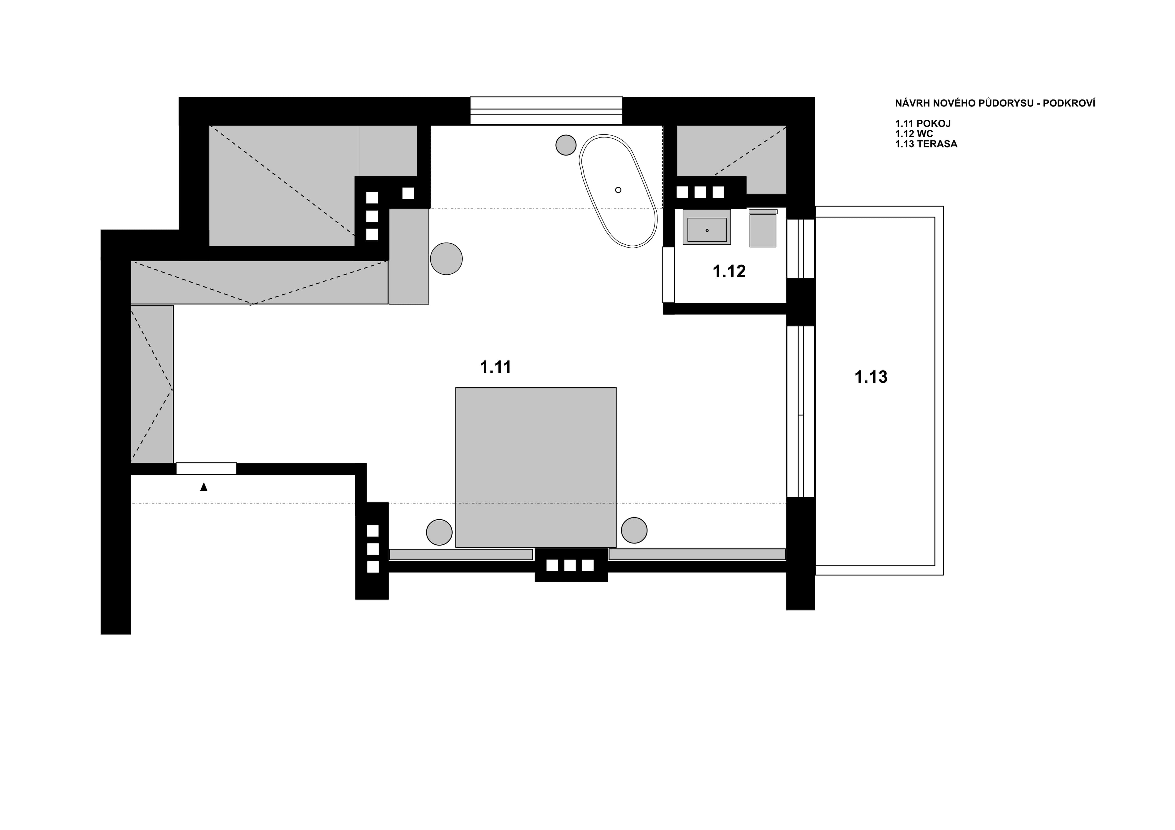
K prodeji nabízíme celé třetí nadzemní podlaží prvorepublikové bytové vily v oblíbené a vyhledávané lokalitě pražské Hanspaulky. Celé podlaží disponuje plochou 194 m2 a je rozděleno na dvě samostatné bytové jednotky. K jednotkám náleží také podíl na udržované vzrostlé zahradě o výměře více než 1 530 m2.
Vybavení
Jednotky jsou určeny ke kompletní rekonstrukci a úpravou jejich dispozice lze vytvořit velkorysý byt 4-5+kk s terasou a výjimečnými výhledy na město i Pražský hrad. Díky nízkému počtu jednotek ve vile a rozlehlé zahradě lze rekonstrukcí vytvořit unikátní rodinné bydlení s komorní vilovou atmosférou, dostatkem soukromí a blízkostí zeleně. Jednotky lze také ponechat v současné dispozici a využít investičně k budoucímu pronájmu.
Jednotky jsou vytápěny samostatným plynovým kotlem. V domě je možnost vybudování výtahu.
Lokalita
Byty se nachází v oblíbené lokalitě Praha 6 - Dejvice ve vyhledávané rezidenční části Hanspaulka, která disponuje plnou občanskou vybaveností a je oblíbená pro svou klidnou atmosféru a blízkost přírodního parku Šárka. Skvělá je také dopravní dostupnost - 2 minuty chůze na tramvajovou i autobusovou zastávku, 5 minut na stanici metra A - Bořislavka. Do centra města se tak lze dopravit do 15 minut a na letiště Václava Havla do 20 minut. Výhodou je také blízkost mezinárodních škol v Praze 6 a v Nebušicích.
V inzerci byly použity vizualizace a půdorysy navrhovaného řešení, které mají pouze ilustrativní charakter.
Informace
- Přečtěte si informace pro kupující
- Cena
- 19 900 000 Kč
- Status nemovitosti
- Volný
- Dostupnost
- ihned
- Investiční
- Ano
- ID
533199
Specifikace nemovitosti
- Lokalita
- Dejvice
- Adresa
- Dispozice
- 4+kk
- Ložnice
- 3
- Koupelny
- 2
- Podlahová plocha
- 194.3 m²
- Podlaží
- 3
- Orientace
- Severovýchod
- Parkování
- 1x Stání na pozemku
- Stav stavby
- Před rekonstrukcí
- Energetická náročnost
- G
Máte o tuto nemovitost zájem?
Spojte se s námi. Rádi s vámi probereme detaily.

Galerie
Jak vypadá nemovitost a její blízké okolí
Půdorys
Prozkoumejte dispoziční řešení
Poradíme s výběrem
Pomůžeme s financováním
Nemovitost jako investice
Lokalita
Co se nachází v okolí
Sledování novinek v nabídce

