Byt Toufarova
Slunný byt 3+kk s balkonem
Byt Toufarova
・
ID 532655
Toufarova, Stodůlky, Praha 5
12 863 000 Kč
12 863 000 Kč
Slunný byt 3+kk s balkonem
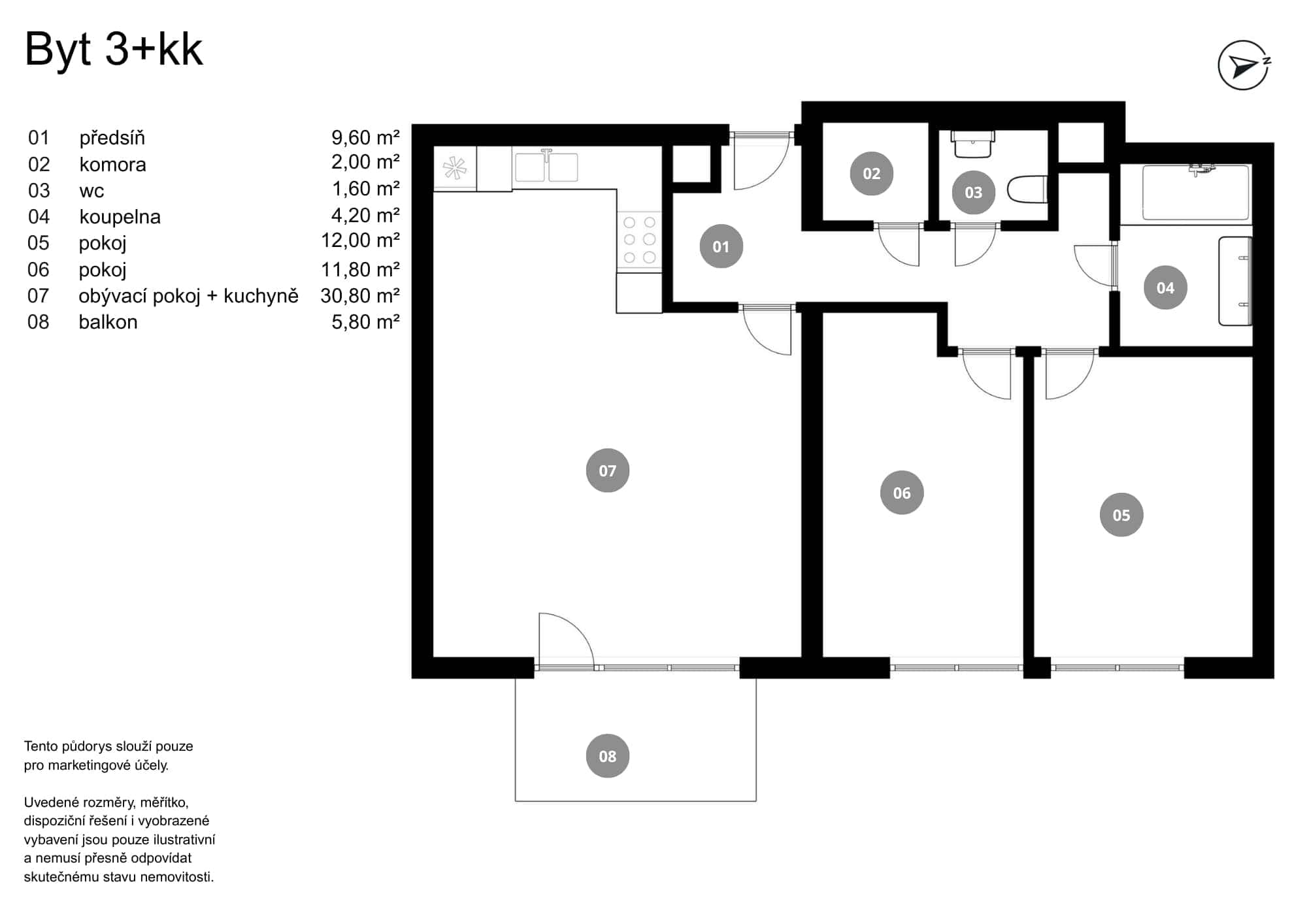
Nabízíme k prodeji prostorný byt dispozice 3+kk o celkové podlahové ploše 78,1 m², který se nachází ve 2. nadzemním podlaží moderní novostavby. Byt se skládá ze dvou samostatných ložnic, prostorného obývacího pokoje propojeného s kuchyňským koutem, koupelny a samostatné toalety. Součástí bytu je také balkon (5,8 m2), ideální pro relaxaci a posezení. K bytu dále náleží praktický sklep a vyhrazené parkovací stání. Budova je vybavena také výtahem.
Vybavení
Byt je vybaven kuchyňskou linkou na míru s kvalitními spotřebiči značky Bosch. Obývací pokoj i ložnice jsou kompletně zařízené. Celkové vybavení bytu je v moderním stylu, s důrazem na funkčnost a pohodlí.
Lokalita
Byt se nachází v Toufarově ulici, na Praze 5. Lokalita nabízí výbornou občanskou vybavenost a skvělé dopravní spojení. V okolí najdete veškerou potřebnou infrastrukturu – obchody, školy, školky, restaurace a zdravotní zařízení. V docházkové vzdálenosti se nachází zastávky autobusů a také metra, které vás spolehlivě dopraví do centra Prahy. Okolí nabízí také dostatek zelených ploch a parků pro odpočinek a sportovní aktivity. Ideální místo pro rodiny s dětmi i mladé páry hledající klidné bydlení s výbornou dostupností do centra.
Informace
- Přečtěte si informace pro kupující
- Cena
- 12 863 000 Kč
- Status nemovitosti
- Volný
- Dostupnost
- květen 2026
- Investiční
- Ne
- ID
532655
Specifikace nemovitosti
- Lokalita
- Stodůlky
- Adresa
- Dispozice
- 3+kk
- Ložnice
- 2
- Koupelny
- 1
- Podlahová plocha
- 72 m²
- Sklep
- 3.8 m²
- Podlaží
- 3
- Orientace
- Východ
- Balkon
- 5.8 m²
- Vybavení
- Výtah
- Stav stavby
- Novostavba
- Energetická náročnost
- B
Máte o tuto nemovitost zájem?
Spojte se s námi. Rádi s vámi probereme detaily.

Galerie
Jak vypadá nemovitost a její blízké okolí
Půdorys
Prozkoumejte dispoziční řešení
Poradíme s výběrem
Pomůžeme s financováním
Nemovitost jako investice
Lokalita
Co se nachází v okolí
Sledování novinek v nabídce

