Exkluzivně
Byt Haštalská
Elegantní mezonet v prestižní části historického centra na prodej
Byt Haštalská
・
ID 532157
Haštalská, Staré Město, Praha 1
Elegantní mezonet v prestižní části historického centra na prodej
Elegantní mezonet v prestižní části historického centra Prahy, spojující prvotřídní design s precizními detaily.
Představujeme jedinečný mezonetový byt o dispozici 3+kk a užitné ploše 119 m², situovaný v klidné a prestižní Haštalské ulici na Starém Městě, jen pár kroků od Pařížské ulice a Staroměstského náměstí. Spojení původní architektury, moderního designu a nadstandardního provedení vytváří výjimečné bydlení určené pro náročného klienta, který hledá kombinaci stylu, kvality a výjimečné lokality.
Interiér vznikl ve spolupráci s architektonickým studiem Acht. Každý prvek byl navržen a zhotoven na míru s důrazem na funkčnost, estetiku a špičkové zpracování detailu. Kuchyňská linka i veškeré vestavěné úložné prvky pocházejí z dílny Devoto Furniture.
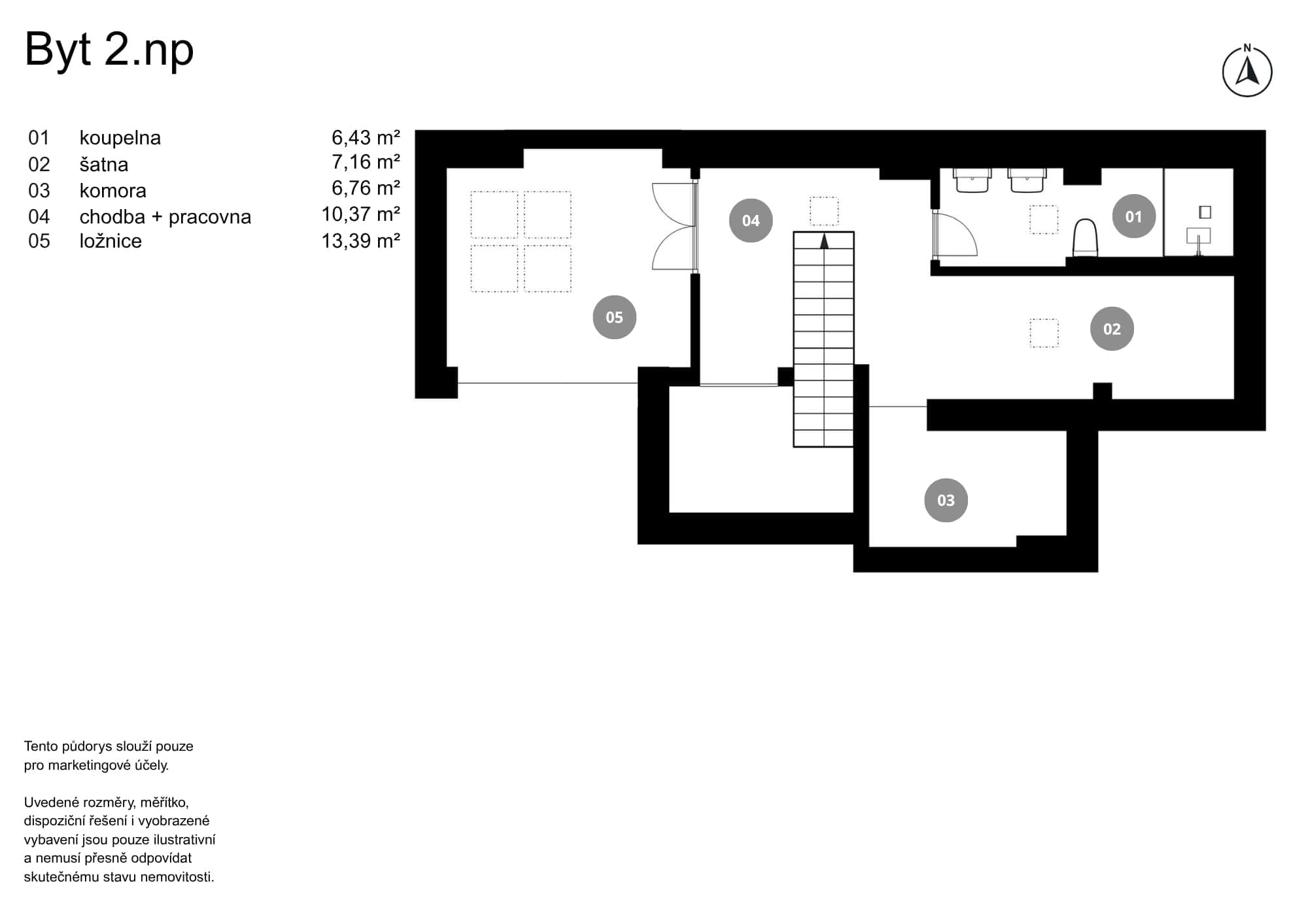
Spodní úroveň bytu nabízí velkorysý obývací prostor s kuchyní, ložnici oddělenou elegantní skleněnou stěnou Dorsis, koupelnu a vstupní část s technickým zázemím. Horní podlaží tvoří druhá ložnice, koupelna, galerie s pracovním koutem a prostorná walk-in šatna.
Vybavení
Byt je vybaven ve vysokém standardu a připraven k nastěhování. Dominují zde kvalitní materiály a nadčasový design. Vestavěné skříně, kuchyň i další nábytek na míru jsou zhotoveny značkou Devoto Furniture, známou precizním zpracováním a prvotřídním designem.
Interiér bytu prošel kompletní a velmi kvalitní rekonstrukcí s důrazem na moderní design, nadčasové materiály a precizní řemeslné zpracování. Atmosféru domova podtrhuje promyšlené ambientní osvětlení, které vytváří příjemné světelné scény napříč celým prostorem. Kuchyňská linka je vybavena vestavěnými spotřebiči Bosch a nabízí vysoký komfort pro každodenní vaření. Součástí vybavení je také pračka a sušička Miele. Klimatizace zajišťuje příjemné prostředí po celý rok. Nová elektricky ovládaná střešní okna se systémem chytrého stínění přivádějí do interiéru dostatek denního světla a umožňují pohodlnou regulaci teploty i soukromí.
Bezpečnostní vstupní dveře, videotelefon a přístup do domu na čip poskytují vysokou úroveň zabezpečení. Celý dům prošel citlivou rekonstrukcí se zachováním původních architektonických prvků a byl doplněn o moderní výtah.
Lokalita
Haštalská ulice patří k nejkrásnějším a nejklidnějším částem Starého Města. Nachází se v samotném srdci historického centra, jen pár kroků od Pařížské ulice, Staroměstského náměstí, nábřeží Vltavy a Letenských sadů.
Okolí nabízí širokou škálu špičkových restaurací, stylových kaváren, butiků a galerií, které podtrhují výjimečný charakter této lokality. Výbornou dopravní dostupnost zajišťují stanice metra Staroměstská a Náměstí Republiky i několik tramvajových linek.
Pro chvíle odpočinku či aktivní relaxace je v okolí dostatek možností — od procházek podél Vltavy přes posezení v útulných kavárnách až po sportovní aktivity v Letenských sadech.
Tato adresa představuje dokonalé propojení prestižní lokality, vysokého životního standardu a výjimečné architektury, které z ní činí jedno z nejžádanějších míst pro bydlení v Praze.
Informace
- Přečtěte si informace pro kupující
- Cena
- na vyžádání
- Status nemovitosti
- Volný
- Investiční
- Ne
- ID
532157
Specifikace nemovitosti
- Lokalita
- Staré Město
- Adresa
- Dispozice
- 3+kk
- Ložnice
- 2
- Koupelny
- 2
- Podlahová plocha
- 119 m²
- Podlaží
- 6
- Orientace
- Jih
- Vybavení
- Výtah, Klimatizace
- Stav stavby
- Velmi dobrý
- Energetická náročnost
- E
Máte o tuto nemovitost zájem?
Spojte se s námi. Rádi s vámi probereme detaily.

Galerie
Jak vypadá nemovitost a její blízké okolí
Půdorys
Prozkoumejte dispoziční řešení
Poradíme s výběrem
Pomůžeme s financováním
Nemovitost jako investice
Lokalita
Co se nachází v okolí
Sledování novinek v nabídce

