Exkluzivně
Hodkovičky
Exkluzivní vila k prodeji
Hodkovičky
・
ID 531330
Hodkovičky, Praha 4
Exkluzivní vila k prodeji
Nabízíme k prodeji exkluzivní vilu 6+kk v prestižní lokalitě Prahy 4 – Hodkovičky, obklopenou zelení v těsném sousedství lesoparku, golfového hřiště a cyklostezek podél Vltavy. Reprezentativní sídlo s oddělenou jednotkou 2+kk, dvěma terasami, rozlehlou zahradou, vnitřním bazénem, garáží i carportem nabízí komfortní rodinné zázemí i dostatek soukromí.
Vybavení
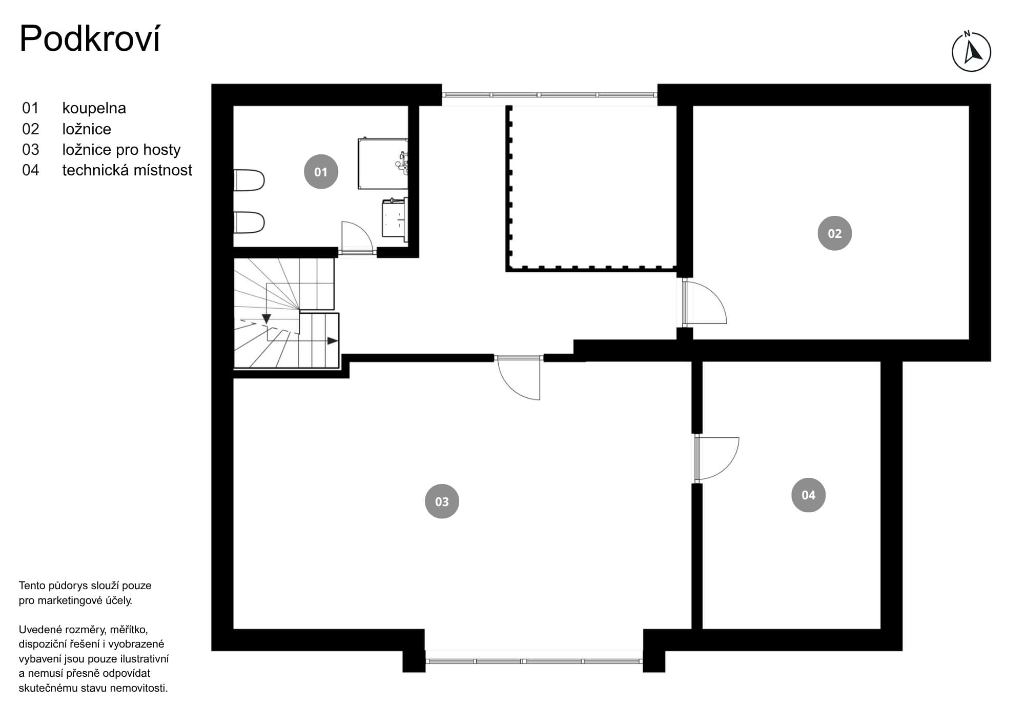
Tato majestátně se tyčící vila 6+kk zasazená do svahovitého terénu mezi vzrostlými stromy nabízí jedinečné spojení luxusu, soukromí a komfortu na celkové obytné ploše 700 m². V přízemí naleznete vnitřní bazén, saunu, prostornou fitness zónu, koupelny, toalety, praktické skladovací prostory. Dále je vyhrazeno bytu 2+kk se samostatným vchodem, vlastní koupelnou a toaletou – ideální zázemí pro hosty či personál. První patro okouzlí reprezentativním vstupem, stylovou kuchyní s barovým sezením a spíží, jídelnou s přímým vstupem na jednu z teras, vzdušným obývacím pokojem s krbem, šatnou a garáží pro dva vozy. Ve druhém patře se nachází prostorné ložnice, koupelny a velká pracovna, které poskytují dostatek místa pro rodinu i práci z domova. Třetí patro nabídne další ložnice, koupelnu a technickou místnost. Luxusní vila vyniká jedinečnou architekturou, vkusně vybaveným interiérem, kvalitními materiály a moderními spotřebiči. Součástí je také rozlehlá udržovaná zahrada o rozloze 1.700 m² se třemi zahradními domky.
Lokalita
Hodkovičky jsou synonymem pro komfortní život v přírodě a zároveň na dosah centra metropole. V okolí naleznete mateřské i základní školy, gymnázium, jazykové školy nebo dětská hřiště. Pro každodenní nákupy oceníte blízkost supermarketů (Albert, Lidl), menších obchodů, pekáren, lékáren nebo kaváren, které dotváří sousedskou atmosféru této čtvrti. Nedaleko nechybí ani zdravotnická zařízení či pošta. Lokalita se pyšní výbornou dopravní dostupností – v pěší vzdálenosti najdete tramvajové a autobusové zastávky, které vás pohodlně dopraví do centra Prahy během 15 minut. Vynikající je i napojení na hlavní silniční tahy. Milovníci přírody a aktivního odpočinku ocení blízkost lesoparku Hodkovičky, rozlehlého areálu golfového hřiště Praha-Hodkovičky, cyklostezky podél Vltavy, oblíbeného Branického lesa či přírodního parku Modřanská rokle.
Specifikace nemovitosti
- Lokalita
- Hodkovičky
- Adresa
- Dispozice
- 8+1
- Ložnice
- 6
- Koupelny
- 4
- Podlahová plocha
- 700 m²
- Pozemek
- 1900 m²
- Zahrada
- 1700 m²
- Počet podlaží
- 3
- Parkování
- 2x Garáž, 1x Stání na pozemku
- Terasa
- 110.9 m²
- Vybavení
- Bazén, Sauna, Krb
- Stav stavby
- Velmi dobrý
- Energetická náročnost
- D
Máte o tuto nemovitost zájem?
Spojte se s námi. Rádi s vámi probereme detaily.

Galerie
Jak vypadá nemovitost a její blízké okolí
Půdorys
Prozkoumejte dispoziční řešení
Poradíme s výběrem
Pomůžeme s financováním
Nemovitost jako investice
Sledování novinek v nabídce

